Wielopokoleniowy dom 250 m z potencjałem
Dom na sprzedaż, cena 1225000 PLN, 4900 PLN/m2, powierzchnia 250 m2Łowicz, łódzkie, Polska




















Jeśli szukasz komfortowego domu w zabudowie bliźniaczej dla rodziny w atrakcyjnej okolicy
- to ta ALTERNATYWA jest dla Ciebie.
Ta oferta tylko u nas!
Przemysław Wasiak tel.: 604*940*753
LOKALIZACJA:
ul. Długa 35, Łowicz
Do sprzedaży piętrowy dom o powierzchni 250 m2
usytuowany na działce o powierzchni 382 m2
w cenie 1 225 000 zł.
POMIESZCZENIA:
Na parterze o powierzchni 160 m2 znajdują się:
M1
- salon: 41 m2
- kuchnia: 10 m2
- pokój: 19 m2
- łazienka: 4,5 m2
- przedpokój: 9 m2
- kotłownia: 4,5 m2
- pomieszczenie 2,4 m2
- przedpokój II: 2,4 m2
- spiżarnia: 3,26 m2
- pakamera pod schodami: 2 m2
- garaż: 15 m2
M2
- pokój: 18,3 m2
- sypialnia: 10,3 m2
- przedpokój: 1,7 m2
- kuchnia: 11,3 m2
- łazienka: 6 m2
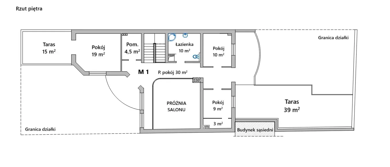
Na pierwszym piętrze o powierzchni 90 m2 znajdują się:
- pokój/sypialnia 1: 19 m2
- pokój/sypialnia 2: 10,5 m2
- pokój/sypialnia 3: 12 m2
- pomieszczenie: 4,5 m2
- łazienka 1: 10 m2
- korytarz: 30 m2
- taras 1: 15 m2
- taras 2: 40 m2
ATUTY:
- dom został zaprojektowany na zasadach:
Feng shui to starożytna chińska praktyka aranżacji przestrzeni, której celem jest harmonizacja energii (chi) w danym miejscu. Dosłownie oznacza „wiatr i woda" i ma na celu zapewnienie przepływu pozytywnej energii, co przekłada się na lepsze zdrowie, bogactwo i szczęście mieszkańców. Feng shui opiera się na zasadzie yin-yang oraz wzajemnych oddziaływaniach Pięciu Żywiołów, dążąc do równowagi w otoczeniu.
- dodatkowe mieszkanie o pow 48 m2 z oddzielnym wejściem z patio domu
- doskonała lokalizacja w bardzo atrakcyjnej północnej części miasta,
w pobliżu centrum miasta, blisko obwodnicy
- działka z nasadzeniami
- jasne i funkcjonalne pomieszczenia
- na powierzchni salony wysokość 5,6 m
- trzy duże tarasy
- garaż w bryle budynku
- dwa miejsca postojowe
- dojazd do posesji od strony ul. Długiej oraz ul. Garbarskiej
INFORMACJE TECHNICZNE:
- ściany - beton komórkowy
- dach - blacho-dachówka
- okna z PCV
- media: prąd, woda i kanalizacja miejska, ogrzewanie olejowe
- parter - ogrzewanie podłogowe
OKOLICA:
Nieruchomość położona jest w bliskim sąsiedztwie wszelkich udogodnień życia codziennego:
- sklepy osiedlowe, Lidl
- Park im Adama Mickiewicza w odległości 200 m
- Liceum Ogólnokształcące nr I im. J. Chełmońskiego, - 150 m
- Szkoła Podstawowa nr 2, - 350 m
- lokalne restauracje, bary i kawiarnie
- przedszkola i żłobki
- siłownie i kluby fitness
- paczkomaty
Zapewniamy kompleksową obsługę finansową i prawną przy zakupie nieruchomości.
POMAGAMY W UZYSKANIU NAJLEPIEJ DOPASOWANEGO DO POTRZEB KREDYTU.
Przemysław Wasiak tel.: 604 940 753
e-mail: przemyslaw.wasiak@4alternatywy.com
Ogłoszenie to nie stanowi oferty w rozumieniu Kodeksu Cywilnego, a dane w nim zawarte mają jedynie charakter informacyjny i mogą ulec zmianie.
- to ta ALTERNATYWA jest dla Ciebie.
Ta oferta tylko u nas!
Przemysław Wasiak tel.: 604*940*753
LOKALIZACJA:
ul. Długa 35, Łowicz
Do sprzedaży piętrowy dom o powierzchni 250 m2
usytuowany na działce o powierzchni 382 m2
w cenie 1 225 000 zł.
POMIESZCZENIA:
Na parterze o powierzchni 160 m2 znajdują się:
M1
- salon: 41 m2
- kuchnia: 10 m2
- pokój: 19 m2
- łazienka: 4,5 m2
- przedpokój: 9 m2
- kotłownia: 4,5 m2
- pomieszczenie 2,4 m2
- przedpokój II: 2,4 m2
- spiżarnia: 3,26 m2
- pakamera pod schodami: 2 m2
- garaż: 15 m2
M2
- pokój: 18,3 m2
- sypialnia: 10,3 m2
- przedpokój: 1,7 m2
- kuchnia: 11,3 m2
- łazienka: 6 m2
Na pierwszym piętrze o powierzchni 90 m2 znajdują się:
- pokój/sypialnia 1: 19 m2
- pokój/sypialnia 2: 10,5 m2
- pokój/sypialnia 3: 12 m2
- pomieszczenie: 4,5 m2
- łazienka 1: 10 m2
- korytarz: 30 m2
- taras 1: 15 m2
- taras 2: 40 m2
ATUTY:
- dom został zaprojektowany na zasadach:
Feng shui to starożytna chińska praktyka aranżacji przestrzeni, której celem jest harmonizacja energii (chi) w danym miejscu. Dosłownie oznacza „wiatr i woda" i ma na celu zapewnienie przepływu pozytywnej energii, co przekłada się na lepsze zdrowie, bogactwo i szczęście mieszkańców. Feng shui opiera się na zasadzie yin-yang oraz wzajemnych oddziaływaniach Pięciu Żywiołów, dążąc do równowagi w otoczeniu.
- dodatkowe mieszkanie o pow 48 m2 z oddzielnym wejściem z patio domu
- doskonała lokalizacja w bardzo atrakcyjnej północnej części miasta,
w pobliżu centrum miasta, blisko obwodnicy
- działka z nasadzeniami
- jasne i funkcjonalne pomieszczenia
- na powierzchni salony wysokość 5,6 m
- trzy duże tarasy
- garaż w bryle budynku
- dwa miejsca postojowe
- dojazd do posesji od strony ul. Długiej oraz ul. Garbarskiej
INFORMACJE TECHNICZNE:
- ściany - beton komórkowy
- dach - blacho-dachówka
- okna z PCV
- media: prąd, woda i kanalizacja miejska, ogrzewanie olejowe
- parter - ogrzewanie podłogowe
OKOLICA:
Nieruchomość położona jest w bliskim sąsiedztwie wszelkich udogodnień życia codziennego:
- sklepy osiedlowe, Lidl
- Park im Adama Mickiewicza w odległości 200 m
- Liceum Ogólnokształcące nr I im. J. Chełmońskiego, - 150 m
- Szkoła Podstawowa nr 2, - 350 m
- lokalne restauracje, bary i kawiarnie
- przedszkola i żłobki
- siłownie i kluby fitness
- paczkomaty
Zapewniamy kompleksową obsługę finansową i prawną przy zakupie nieruchomości.
POMAGAMY W UZYSKANIU NAJLEPIEJ DOPASOWANEGO DO POTRZEB KREDYTU.
Przemysław Wasiak tel.: 604 940 753
e-mail: przemyslaw.wasiak@4alternatywy.com
Ogłoszenie to nie stanowi oferty w rozumieniu Kodeksu Cywilnego, a dane w nim zawarte mają jedynie charakter informacyjny i mogą ulec zmianie.
| Informacje podstawowe | ||
|---|---|---|
| Rodzaj nieruchomości | Dom | |
| Rodzaj transakcji | Sprzedaż | |
| Rynek | Wtórny | |
| Województwo | łódzkie | |
| Miejscowość | Łowicz | |
| Prąd (przyłącze) | Tak | |
| Woda (przyłącze) | Tak | |
| Gaz (przyłącze) | Tak | |
| Kanalizacja | Tak | |
| Warunki zabudowy | Tak | |
| Parking | Tak | |
| Rodzaj budynku | Dom jednorodzinny | |
| Rok budowy | 2000 | |
| Informacje dodatkowe | ||
|---|---|---|
| Powierzchnia działki | 382 | |
| Położenie działki | Teren płaski | |
| Kształt działki | Prostokąt | |
| Liczba pięter | 2 | |
| Liczba pokoi | 5 | |
| Liczba sypialni | 4 | |
| Liczba łazieniek | 2 | |
| Stan obiektu | Wykończony | |
| Rodzaj kuchni | Aneks | |
| Materiał | Ytong | |
| Technologia | Ytong | |
| Zadaszenie (materiał) | Blachodachówka | |
| Ogrzewanie | Olej opałowy | |
| Dostępność | Do uzgodnienia | |
| Balkon | Tak | |
| Loggia | Nie | |
| Taras | Tak | |
| Ogród | Tak | |
| Piwnica | Nie | |
| Poddasze | Nie | |
| Winda | Nie | |
| Otoczenie | ||
|---|---|---|
| Otoczenie | Osiedle domów jednorodzinnych | |
| Las | Nie | |
| Łąka | Nie | |
| Góry | Nie | |
| Jezioro | Nie | |
| Rzeka | Nie | |
| Morze | Nie | |
| Park | Tak | |
| Bank | Tak | |
| Restauracja | Tak | |
| Bar / pub | Tak | |
| Szkoła podstawowa | Tak | |
| Liceum / Technikum | Tak | |
| Uczelnia | Nie | |
| Żłobek | Tak | |
| Przedszkole | Tak | |
| Basen | Nie | |
| Fitnes | Tak | |
| Pralnia | Tak | |
| Apteka | Tak | |
| Fryzjer | Tak | |
| Supermarket | Tak | |
| Sklep spożywczy | Tak | |
| Weterynarz | Tak | |
Kontakt:
Przemysław Wasiak
Tel.: 604 940 753
Nr ref.: O-17663
Przemysław Wasiak
Tel.: 604 940 753
Nr ref.: O-17663
