Przestronny bliźniak idealny dla rodziny
Dom na sprzedaż, cena 880000 PLN, 6721 PLN/m2, powierzchnia 130 m2Rybna, małopolskie, Polska














Z przyjemnością prezentujemy przestronny, 5-pokojowy dom w stanie deweloperskim podwyższonym. Jeśli szukasz spokojnego miejsca do życia ta ALTERNATYWA jest dla Ciebie.
Dom w zabudowie bliźniaczej z garażem, posadowiony na działce 4,5 ara znajduje się w miejscowości Rybna w gminie Liszki. Dostępne są również większe wymiary działek. Ogromnym atutem jest bliskość sklepów, przychodni i przystanku autobusowego z jednoczesnym dostępem do pięknych terenów zielonych.
Anna Nayman
660*442*233
Przedstawiam do sprzedaży dom w zabudowie bliźniaczej z garażem o powierzchni
130 m2 w cenie 880 000 zł
Dom jest w stanie deweloperskim podwyższonym (założony Geberit oraz parapety), ma gotowe odbiory.
Kupujący NIE PŁACI podatku PCC.
POMIESZCZENIA
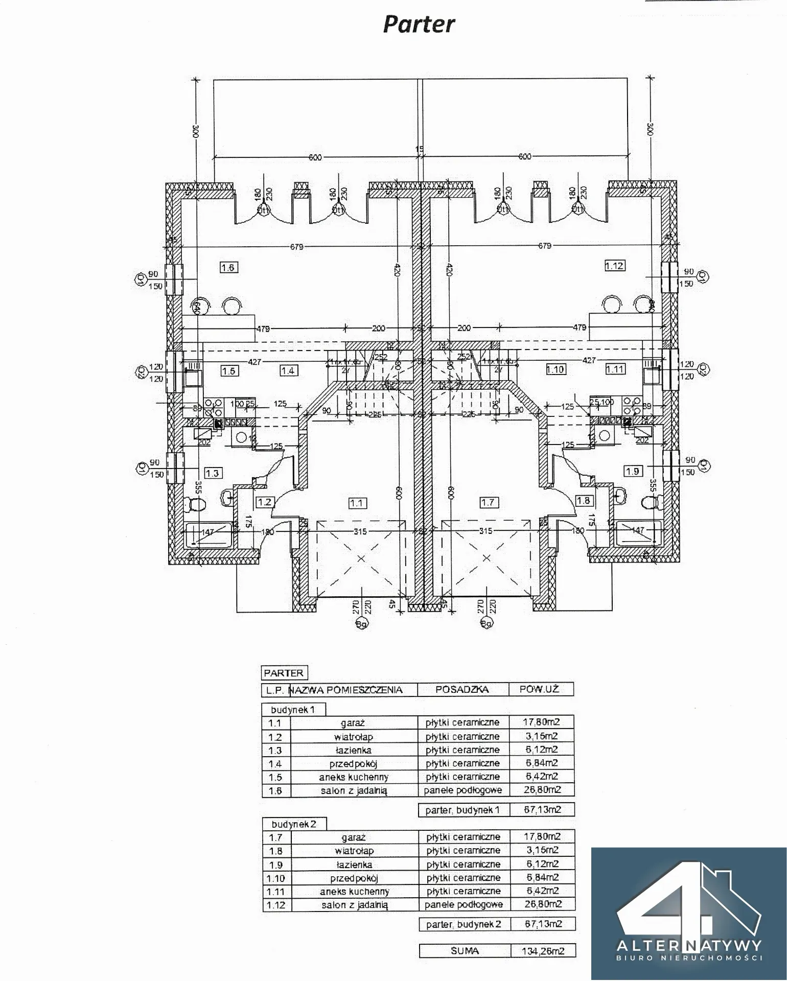
Na parterze o powierzchni użytkowej 67,13 m2 znajduje się:
Garaż 17,80 m2
Wiatrołap 3,15m2
Łazienka 6,12m2
Przedpokój 6,84m2
Aneks kuchenny 6,42m2
Salon z jadalnia 26,80m2
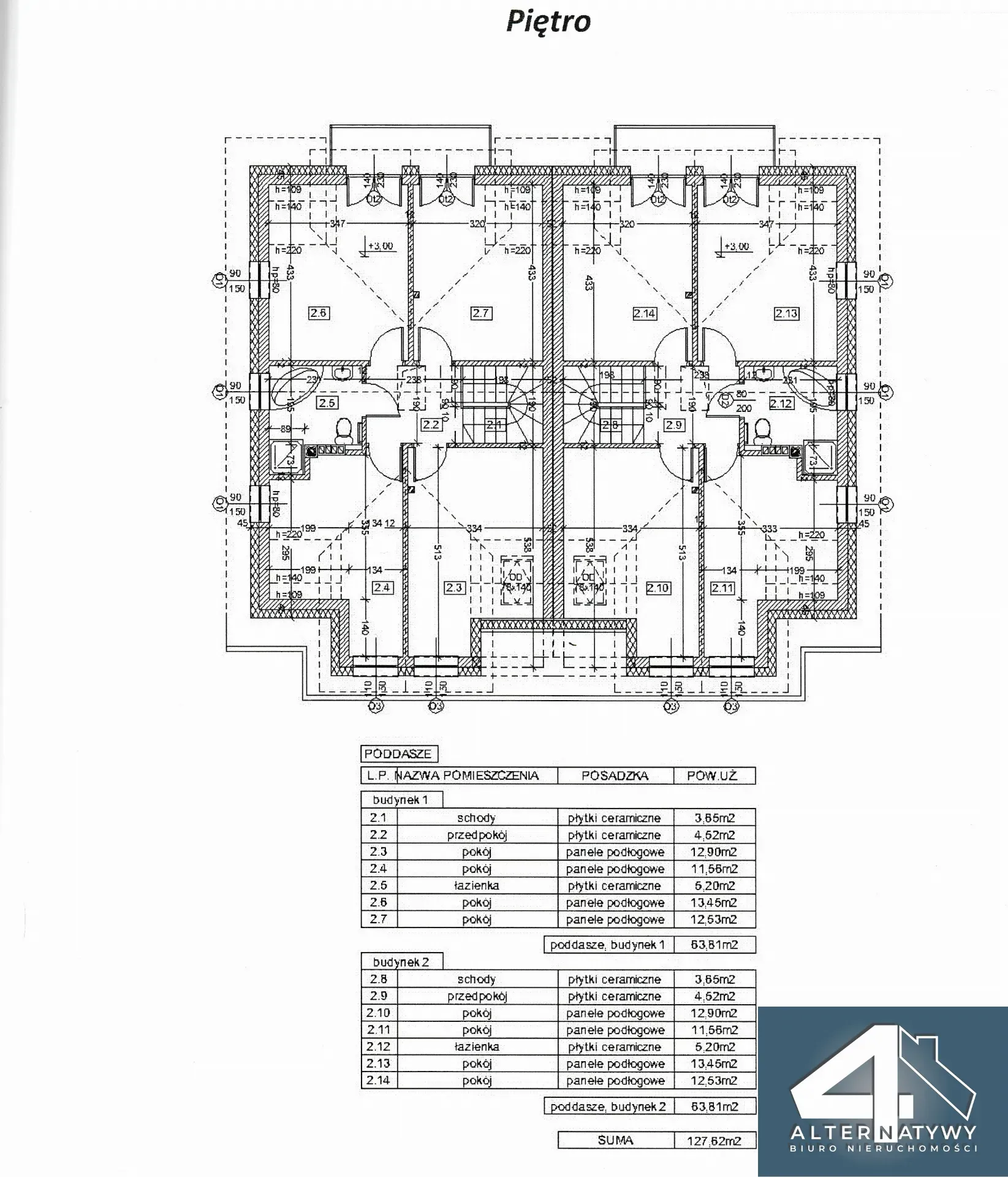
Na piętrze o powierzchni użytkowej 63,81m2 znajdują się:
Schody 3,65m2
Przedpokój 4,62m2
Pokój 12,90m2
Pokój 11,56m2
Łazienka 5,20m2
Pokój 13,45m2
Pokój 12,53m2
+ strych
Dokładny rozkład pomieszczeń można zobaczyć na załączonych rzutach.
MEDIA:
- prąd
- gaz ziemny: ogrzewanie podłogowe - kocioł gazowy (c.o. + c.w.u.) z zamknięta komorą spalania współpracujący z zasobnikiem ciepłej wody użytkowej
- woda: sieć wodociągowa
- kanalizacja miejska
INFORMACJE TECHNICZNE
Standard wykonania domu:
• budynek wykonany technologią tradycyjną: ściany nośne - POROTHERM 25 cm, ścianki działowe - pustak ceramiczny POROTHERM 11,5 cm
• elewacja: ocieplenie - styropian 20 cm + tynk akrylowy
• fundamenty betonowe z hydroizolacją i ociepleniem 15 cm
• pokrycie: dachówka ceramiczna, okna dachowe FAKRO, rynny PCV
• podbitka dachu drewniana
• kominy wykonane systemem SCHIEDEL
• okna plastikowe trzyszybowe w kolorze antracyt
• drzwi wejściowe ocieplane
• podłogi: wylewki i izolacje
• ściany: tynki maszynowo- gipsowe
• poddasze ocieplone: wełna 30 cm, konstrukcja metalowa, płyty gipsowo-kartonowe
• zamontowane schody strychowe
• barierki metalowe na balkonach
• parapety wewnętrzne zamontowane
• przyłącz prądu, gazu, wody, kanalizacji wraz z wykonanymi instalacjami w budynku
• wykonanie instalacji gazowej wewnętrznej
• wykonana instalacja antenowa
• grzejniki panelowe białe i kocioł z zamkniętą komorą spalania
• ogrzewanie podłogowe
• zamontowany zestaw podtynkowy GEBERIT
• alarm z powiadomieniem jednostki interwencyjnej
• budynek oddany do użytkowania - ODBIÓR TECHNICZNY
• bez drzwi wewnętrznych, podłóg, szpachlowania, malowania, białego montażu
DODATKOWE ATUTY NIERUCHOMOŚCI:
• podjazd do budynku wyłożony kostką brukową
• działka ogrodzona panelami
• brama wjazdowa i furtka
• taras z widokiem na ogród wyłożony kostką brukową
• teren wokół budynku wstępnie uporządkowany i zniwelowany
OKOLICA:
W najbliższej okolicy znajduje się:
>700m przychodnia
>250m przystanek autobusowy
>3 minuty samochodem sklep spożywczy
>2 minuty samochodem żłobek/przedszkole
Zapraszam do kontaktu:
Anna Nayman
660*442*233
e-mail: anna.nayman@4alternatywy.com
Zapewniamy kompleksową obsługę finansową i prawną przy zakupie nieruchomości.
POMAGAMY W UZYSKANIU NAJLEPIEJ DOPASOWANEGO DO POTRZEB KREDYTU.
Ogłoszenie to nie stanowi oferty w rozumieniu Kodeksu Cywilnego, a dane w nim zawarte mają jedynie charakter informacyjny i mogą ulec zmianie.
Link do video: https://youtube.com/shorts/hUdfip17zG4
Dom w zabudowie bliźniaczej z garażem, posadowiony na działce 4,5 ara znajduje się w miejscowości Rybna w gminie Liszki. Dostępne są również większe wymiary działek. Ogromnym atutem jest bliskość sklepów, przychodni i przystanku autobusowego z jednoczesnym dostępem do pięknych terenów zielonych.
Anna Nayman
660*442*233
Przedstawiam do sprzedaży dom w zabudowie bliźniaczej z garażem o powierzchni
130 m2 w cenie 880 000 zł
Dom jest w stanie deweloperskim podwyższonym (założony Geberit oraz parapety), ma gotowe odbiory.
Kupujący NIE PŁACI podatku PCC.
POMIESZCZENIA
Na parterze o powierzchni użytkowej 67,13 m2 znajduje się:
Garaż 17,80 m2
Wiatrołap 3,15m2
Łazienka 6,12m2
Przedpokój 6,84m2
Aneks kuchenny 6,42m2
Salon z jadalnia 26,80m2
Na piętrze o powierzchni użytkowej 63,81m2 znajdują się:
Schody 3,65m2
Przedpokój 4,62m2
Pokój 12,90m2
Pokój 11,56m2
Łazienka 5,20m2
Pokój 13,45m2
Pokój 12,53m2
+ strych
Dokładny rozkład pomieszczeń można zobaczyć na załączonych rzutach.
MEDIA:
- prąd
- gaz ziemny: ogrzewanie podłogowe - kocioł gazowy (c.o. + c.w.u.) z zamknięta komorą spalania współpracujący z zasobnikiem ciepłej wody użytkowej
- woda: sieć wodociągowa
- kanalizacja miejska
INFORMACJE TECHNICZNE
Standard wykonania domu:
• budynek wykonany technologią tradycyjną: ściany nośne - POROTHERM 25 cm, ścianki działowe - pustak ceramiczny POROTHERM 11,5 cm
• elewacja: ocieplenie - styropian 20 cm + tynk akrylowy
• fundamenty betonowe z hydroizolacją i ociepleniem 15 cm
• pokrycie: dachówka ceramiczna, okna dachowe FAKRO, rynny PCV
• podbitka dachu drewniana
• kominy wykonane systemem SCHIEDEL
• okna plastikowe trzyszybowe w kolorze antracyt
• drzwi wejściowe ocieplane
• podłogi: wylewki i izolacje
• ściany: tynki maszynowo- gipsowe
• poddasze ocieplone: wełna 30 cm, konstrukcja metalowa, płyty gipsowo-kartonowe
• zamontowane schody strychowe
• barierki metalowe na balkonach
• parapety wewnętrzne zamontowane
• przyłącz prądu, gazu, wody, kanalizacji wraz z wykonanymi instalacjami w budynku
• wykonanie instalacji gazowej wewnętrznej
• wykonana instalacja antenowa
• grzejniki panelowe białe i kocioł z zamkniętą komorą spalania
• ogrzewanie podłogowe
• zamontowany zestaw podtynkowy GEBERIT
• alarm z powiadomieniem jednostki interwencyjnej
• budynek oddany do użytkowania - ODBIÓR TECHNICZNY
• bez drzwi wewnętrznych, podłóg, szpachlowania, malowania, białego montażu
DODATKOWE ATUTY NIERUCHOMOŚCI:
• podjazd do budynku wyłożony kostką brukową
• działka ogrodzona panelami
• brama wjazdowa i furtka
• taras z widokiem na ogród wyłożony kostką brukową
• teren wokół budynku wstępnie uporządkowany i zniwelowany
OKOLICA:
W najbliższej okolicy znajduje się:
>700m przychodnia
>250m przystanek autobusowy
>3 minuty samochodem sklep spożywczy
>2 minuty samochodem żłobek/przedszkole
Zapraszam do kontaktu:
Anna Nayman
660*442*233
e-mail: anna.nayman@4alternatywy.com
Zapewniamy kompleksową obsługę finansową i prawną przy zakupie nieruchomości.
POMAGAMY W UZYSKANIU NAJLEPIEJ DOPASOWANEGO DO POTRZEB KREDYTU.
Ogłoszenie to nie stanowi oferty w rozumieniu Kodeksu Cywilnego, a dane w nim zawarte mają jedynie charakter informacyjny i mogą ulec zmianie.
Link do video: https://youtube.com/shorts/hUdfip17zG4
| Informacje podstawowe | ||
|---|---|---|
| Rodzaj nieruchomości | Dom | |
| Rodzaj transakcji | Sprzedaż | |
| Rynek | Pierwotny | |
| Województwo | małopolskie | |
| Miejscowość | Rybna | |
| Prąd (przyłącze) | Tak | |
| Woda (przyłącze) | Tak | |
| Gaz (przyłącze) | Tak | |
| Kanalizacja | Tak | |
| Warunki zabudowy | Tak | |
| Parking | Tak | |
| Rodzaj budynku | Bliźniak | |
| Rok budowy | 2024 | |
| Informacje dodatkowe | ||
|---|---|---|
| Powierzchnia działki | 449 | |
| Położenie działki | Teren płaski | |
| Kształt działki | Kwadrat | |
| Liczba pięter | 1 | |
| Liczba pokoi | 5 | |
| Liczba sypialni | 4 | |
| Liczba łazieniek | 2 | |
| Stan obiektu | Deweloperski | |
| Rodzaj kuchni | Aneks | |
| Materiał | Pustak | |
| Technologia | Tradycyjna | |
| Zadaszenie (materiał) | Dachówka | |
| Ogrzewanie | Gazowe | |
| Dostępność | Natychmiast | |
| Balkon | Nie | |
| Loggia | Nie | |
| Taras | Tak | |
| Ogród | Tak | |
| Piwnica | Nie | |
| Poddasze | Tak | |
| Winda | Nie | |
| Otoczenie | ||
|---|---|---|
| Otoczenie | Osiedle domów jednorodzinnych | |
| Głośność | Cicho | |
| Las | Tak | |
| Łąka | Tak | |
| Góry | Nie | |
| Jezioro | Nie | |
| Rzeka | Nie | |
| Morze | Nie | |
| Park | Tak | |
| Bank | Tak | |
| Restauracja | Tak | |
| Bar / pub | Nie | |
| Szkoła podstawowa | Tak | |
| Liceum / Technikum | Nie | |
| Uczelnia | Nie | |
| Żłobek | Tak | |
| Przedszkole | Tak | |
| Basen | Nie | |
| Fitnes | Nie | |
| Pralnia | Nie | |
| Apteka | Tak | |
| Fryzjer | Tak | |
| Supermarket | Tak | |
| Sklep spożywczy | Tak | |
| Weterynarz | Nie | |
Kontakt:
Anna Nayman
Tel.: 660 442 233
Nr ref.: O-17890
Anna Nayman
Tel.: 660 442 233
Nr ref.: O-17890
