Prestiżowy apartament -Tabaco Park w Łodzi
Mieszkanie na sprzedaż, cena 890000 PLN, 11302 PLN/m2, powierzchnia 78 m2Łódź, łódzkie, Polska
























TA OFERTA TYLKO U NAS!
Robert Warczyk tel.: 660 359 762
Dla tych, którzy poszukują wyjątkowego apartamentu na zamkniętym ładnie zagospodarowanym osiedlu
w samym centrum Łodzi, ceniących spokój z doskonałą infrastrukturą
to ta ALTERNATYWA w 100% spełni oczekiwania.
LOKALIZACJA:
Łódź - Polesie „Tabaco Park” mieszczący się na ul. Kopernika w Łodzi.
Przedstawiam Państwu do sprzedaży piękny i elegancki apartament
o powierzchni 79 m2 usytuowany na wysokim parterze,
zlokalizowanym na prestiżowym osiedlu ,,Tabaco Park"w cenie 890 000 zł.
Do mieszkania dodatkowo przynależy miejsce w podziemnym parkingu w cenie 60 tys. zł lub bez miejsca parkingowego.
Stan wykończenia nieruchomości w wysokim standardzie,
w doskonałym stanie bez konieczności ponoszenia dodatkowych nakładów.
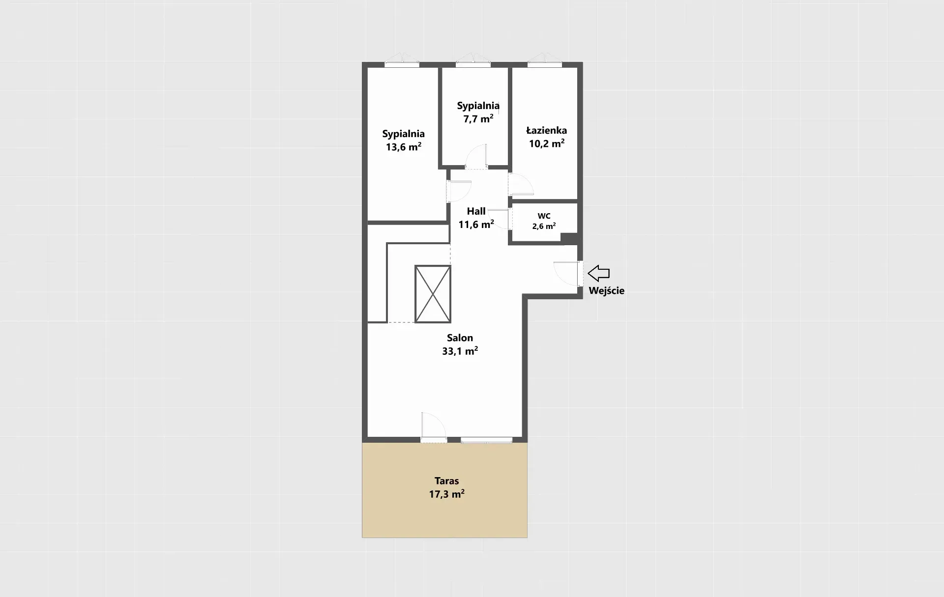
POMIESZCZENIA:
Apartament składa się z:
- salon dzienny z w pełni wyposażonym aneksem kuchennym z wyspą roboczą -33 m2
- sypialnia nr 1 -14 m2
- sypialnia nr 2 -8 m2
- łazienka z wanną, prysznicem dwoma umywalkami oraz toaletą -10 m2
- oddzielna toaleta -2,6 m2
- holl - 11,6 m2
- taras -17m2
ATUTY:
- stan nieruchomości o wysokim standardzie
- ogrzewanie miejskie
- w pełni umeblowane
- kuchnia wraz z całym sprzętem AGD w cenie mieszkania
- duży taras
- drzwi antywłamaniowe
- podłoga: panele
- duża i pojemna szafa wnękowa w sypialni
- ekspozycja okien: salon strona południowa, sypialnie strona północna
- miejsce parkingowe w garażu podziemnym pod apartamentem w cenie
- ogrodzone i strzeżone osiedle z monitoringiem
- nieruchomość położona w części środkowej osiedla z daleka od ulicy z widokiem na ogród.
- nieruchomość położona w doskonałej lokalizacji (trasa 91,Dworzec kolejowy Łódź Kaliska, doskonała komunikacja miejska z całym miastem)
OPŁATY:
Czynsz: 1000 zł / 2 osoby
(czynsz zawiera opłaty za ogrzewanie, ciepłą i zimną wodę oraz odpady)
Media: ogrzewanie miejskie, prąd, woda, kanalizacja oraz internet i telewizja
OKOLICA:
Apartament położony jest w bardzo atrakcyjnej części Łodzi na prestiżowym osiedlu i jest świetnie skomunikowany oraz znajduje się w bliskiej odległości od pełnej infrastruktury.
- sklepy: Żabka, Pasaż Łódzki Auchan (2,5 km), Lidl (550 m), Manufaktura (3,7 km), Makro Cash & Carry (2,4 km), Nowa Sukcesja (1,8 km), Castorama (1.9 km) , Port Lotniczy Łódź im. Władysława Reymonta (5.2 km)
- Przedszkole Miejskie nr 58 (2,4 km), Przedszkole Publiczne im. E. Bojanowskiego (2,2 km), Szkoła Podstawowa nr 152 im. Elizy Orzeszkowej (850 m), Szkoła Podstawowa nr 2 (2,3 km)
- XXI Liceum Ogólnokształcące im. B. Prusa (1,2 km), I Liceum Ogólnokształcące (2,0 km)
Ponadto okoliczny ciąg komunikacyjny gwarantuje znakomite połączenia komunikacji publicznej z wszelakimi istotnymi punktami na mapie Łodzi.
- przystanek autobusowy: 350 m ( 52,55,57,65B,80,97,99,65, N2, N7A/B)
- przystanek tramwajowy: 350m (8,16),650m (10A,10B,12,14,18)
- stacja kolejowa Łódź - Kaliska: 500 m
TERENY REKREACYJNE:
- Park im. księcia Józefa Poniatowskiego (1 km)
- Ogród Botaniczny (3,4)
- Aquapark FALA (2,1)
- Orientarium ZOO Łódź (2.8 km)
- Park im. marszałka Józefa Piłsudskiego "Na Zdrowiu" (3,8 km)
Zapewniamy kompleksową obsługę finansową i prawną przy zakupie nieruchomości.
POMAGAMY W UZYSKANIU NAJLEPIEJ DOPASOWANEGO DO POTRZEB KREDYTU.
Robert Warczyk 660 359 762
e-mail: Robert.warczyk@4alternatywy.com
Ogłoszenie to nie stanowi oferty w rozumieniu Kodeksu Cywilnego, a dane w nim zawarte mają jedynie
charakter informacyjny i mogą ulec zmianie.
Robert Warczyk tel.: 660 359 762
Dla tych, którzy poszukują wyjątkowego apartamentu na zamkniętym ładnie zagospodarowanym osiedlu
w samym centrum Łodzi, ceniących spokój z doskonałą infrastrukturą
to ta ALTERNATYWA w 100% spełni oczekiwania.
LOKALIZACJA:
Łódź - Polesie „Tabaco Park” mieszczący się na ul. Kopernika w Łodzi.
Przedstawiam Państwu do sprzedaży piękny i elegancki apartament
o powierzchni 79 m2 usytuowany na wysokim parterze,
zlokalizowanym na prestiżowym osiedlu ,,Tabaco Park"w cenie 890 000 zł.
Do mieszkania dodatkowo przynależy miejsce w podziemnym parkingu w cenie 60 tys. zł lub bez miejsca parkingowego.
Stan wykończenia nieruchomości w wysokim standardzie,
w doskonałym stanie bez konieczności ponoszenia dodatkowych nakładów.
POMIESZCZENIA:
Apartament składa się z:
- salon dzienny z w pełni wyposażonym aneksem kuchennym z wyspą roboczą -33 m2
- sypialnia nr 1 -14 m2
- sypialnia nr 2 -8 m2
- łazienka z wanną, prysznicem dwoma umywalkami oraz toaletą -10 m2
- oddzielna toaleta -2,6 m2
- holl - 11,6 m2
- taras -17m2
ATUTY:
- stan nieruchomości o wysokim standardzie
- ogrzewanie miejskie
- w pełni umeblowane
- kuchnia wraz z całym sprzętem AGD w cenie mieszkania
- duży taras
- drzwi antywłamaniowe
- podłoga: panele
- duża i pojemna szafa wnękowa w sypialni
- ekspozycja okien: salon strona południowa, sypialnie strona północna
- miejsce parkingowe w garażu podziemnym pod apartamentem w cenie
- ogrodzone i strzeżone osiedle z monitoringiem
- nieruchomość położona w części środkowej osiedla z daleka od ulicy z widokiem na ogród.
- nieruchomość położona w doskonałej lokalizacji (trasa 91,Dworzec kolejowy Łódź Kaliska, doskonała komunikacja miejska z całym miastem)
OPŁATY:
Czynsz: 1000 zł / 2 osoby
(czynsz zawiera opłaty za ogrzewanie, ciepłą i zimną wodę oraz odpady)
Media: ogrzewanie miejskie, prąd, woda, kanalizacja oraz internet i telewizja
OKOLICA:
Apartament położony jest w bardzo atrakcyjnej części Łodzi na prestiżowym osiedlu i jest świetnie skomunikowany oraz znajduje się w bliskiej odległości od pełnej infrastruktury.
- sklepy: Żabka, Pasaż Łódzki Auchan (2,5 km), Lidl (550 m), Manufaktura (3,7 km), Makro Cash & Carry (2,4 km), Nowa Sukcesja (1,8 km), Castorama (1.9 km) , Port Lotniczy Łódź im. Władysława Reymonta (5.2 km)
- Przedszkole Miejskie nr 58 (2,4 km), Przedszkole Publiczne im. E. Bojanowskiego (2,2 km), Szkoła Podstawowa nr 152 im. Elizy Orzeszkowej (850 m), Szkoła Podstawowa nr 2 (2,3 km)
- XXI Liceum Ogólnokształcące im. B. Prusa (1,2 km), I Liceum Ogólnokształcące (2,0 km)
Ponadto okoliczny ciąg komunikacyjny gwarantuje znakomite połączenia komunikacji publicznej z wszelakimi istotnymi punktami na mapie Łodzi.
- przystanek autobusowy: 350 m ( 52,55,57,65B,80,97,99,65, N2, N7A/B)
- przystanek tramwajowy: 350m (8,16),650m (10A,10B,12,14,18)
- stacja kolejowa Łódź - Kaliska: 500 m
TERENY REKREACYJNE:
- Park im. księcia Józefa Poniatowskiego (1 km)
- Ogród Botaniczny (3,4)
- Aquapark FALA (2,1)
- Orientarium ZOO Łódź (2.8 km)
- Park im. marszałka Józefa Piłsudskiego "Na Zdrowiu" (3,8 km)
Zapewniamy kompleksową obsługę finansową i prawną przy zakupie nieruchomości.
POMAGAMY W UZYSKANIU NAJLEPIEJ DOPASOWANEGO DO POTRZEB KREDYTU.
Robert Warczyk 660 359 762
e-mail: Robert.warczyk@4alternatywy.com
Ogłoszenie to nie stanowi oferty w rozumieniu Kodeksu Cywilnego, a dane w nim zawarte mają jedynie
charakter informacyjny i mogą ulec zmianie.
| Informacje podstawowe | ||
|---|---|---|
| Rodzaj nieruchomości | Mieszkanie | |
| Rodzaj transakcji | Sprzedaż | |
| Rynek | Wtórny | |
| Województwo | łódzkie | |
| Miejscowość | Łódź | |
| Prąd (przyłącze) | Tak | |
| Woda (przyłącze) | Tak | |
| Gaz (przyłącze) | Nie | |
| Kanalizacja | Tak | |
| Warunki zabudowy | Tak | |
| Parking | Tak | |
| Rodzaj budynku | Apartamentowiec | |
| Rok budowy | 2011 | |
| Informacje dodatkowe | ||
|---|---|---|
| Piętro | Parter | |
| Liczba pięter | 4 | |
| Liczba pokoi | 3 | |
| Liczba sypialni | 2 | |
| Liczba łazieniek | 1 | |
| Stan obiektu | Wykończony | |
| Rodzaj kuchni | Aneks | |
| Materiał | Bloczki | |
| Technologia | Tradycyjna | |
| Zadaszenie (materiał) | Blacha | |
| Ogrzewanie | Miejskie | |
| Dostępność | Do uzgodnienia | |
| Balkon | Nie | |
| Loggia | Nie | |
| Taras | Tak | |
| Ogród | Nie | |
| Piwnica | Nie | |
| Poddasze | Tak | |
| Winda | Tak | |
| Otoczenie | ||
|---|---|---|
| Otoczenie | Tereny zielone i rekreacyjne | |
| Głośność | Cicho | |
| Las | Nie | |
| Łąka | Nie | |
| Góry | Nie | |
| Jezioro | Nie | |
| Rzeka | Nie | |
| Morze | Nie | |
| Park | Tak | |
| Bank | Tak | |
| Restauracja | Tak | |
| Bar / pub | Tak | |
| Szkoła podstawowa | Tak | |
| Liceum / Technikum | Tak | |
| Uczelnia | Tak | |
| Żłobek | Tak | |
| Przedszkole | Tak | |
| Basen | Tak | |
| Fitnes | Tak | |
| Pralnia | Nie | |
| Apteka | Tak | |
| Fryzjer | Tak | |
| Supermarket | Tak | |
| Sklep spożywczy | Tak | |
| Weterynarz | Tak | |
Kontakt:
Robert Warczyk
Tel.: 660 359 762
Nr ref.: O-17730
Robert Warczyk
Tel.: 660 359 762
Nr ref.: O-17730
