Piękny i ekonomiczny dom w otoczeniu zieleni
Dom na sprzedaż, cena 990000 PLN, 7984 PLN/m2, powierzchnia 124 m2Konstantynów Łódzki, łódzkie, Polska
























Jeśli szukasz domu gotowego do zamieszkania z zadbaną działką, w otoczeniu zieleni i ciszy
oraz z dobrym dojazdem do centrum Konstantynowa Łódzkiego bądź Łodzi
- to ta ALTERNATYWA spełni oczekiwania.
LOKALIZACJA:
okolice Konstantynowa Łódzkiego ul. Wycieczkowej i Florentynowa
Dom położony
- tylko 8 km od Łodzi
- sklepy osiedlowe, dyskonty: 4-9 minut jazdy samochodem
Z przyjemnością przedstawiam Państwu do sprzedaży dom parterowy z poddaszem
o powierzchni użytkowej 124 m2 z 3 sypialniami oraz z tarasem i ogrodem
w cenie 990 000 zł.
Ta oferta tylko u Nas!
Bożena Wachowicz
511*488*139, 662*090*777
Nieruchomość usytuowana jest na prostokątnej działce o powierzchni 970 m2,
a wypielęgnowana roślinność osłaniająca ze wszystkich stron dom od sąsiadów dba dodatkowo o prywatność domowników.
Stan nieruchomości bardzo dobry
- bez konieczności ponoszenia zbędnych, dodatkowych nakładów finansowych.
ATUTY:
+ w cenie domu elementy stałe umeblowania wraz z kuchnią i sprzętem AGD
+ drzwi i rolety okienne antywłamaniowe
+ piękny i przestronny ogród
+ wysoka roślinność ogrodzeniowa pełni funkcję żywopłotu, dając prywatność domownikom
+ duży taras
+ alarm
+ brama i garaż z napędem elektrycznym na pilota
+ bardzo spokojna i cicha okolica dająca dodatkowo dużo przestrzeni na spacery i odpoczynek
+ dojazd drogą asfaltową
DANE TECHNICZNE:
> odbiór domu 2013 r.
> ogrzewanie podłogowe: w łazience, kuchni i przedpokoju
>> pozostałe pomieszczenie: ogrzewanie grzejnikowe
> piec gazowy c.o.+c.w. Vaillant
> materiał budowlany: ceramiczny max
> dach: dachówka betonowa, kąt nachylenia dachu 30 st.
>> 2 okna dachowe
> elewacja: styropian 20 cm
MEDIA:
+ gaz płynny (zbiornik naziemny - zużycie roczne około 2 200 zł )
+ przydomowa oczyszczalnia rozsączająca (opróżnienie 280 zł rocznie)
+ woda miejska
+ prąd
>> 124,05 m2: powierzchnia użytkowa z garażem
>> 151,40 m2: powierzchnia zabudowy
>> 713,55 m2: kubatura brutto
>> 7,22 m2: wysokość budynku
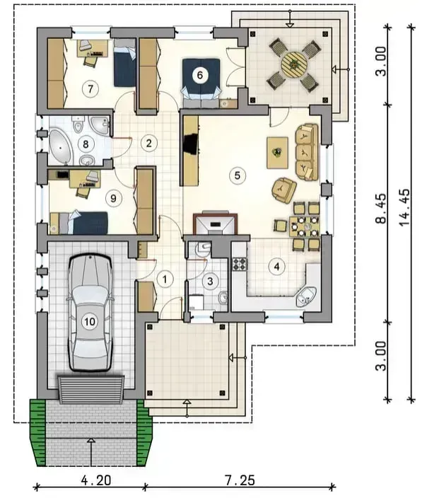
POMIESZCZENIA:
1. przedsionek 5,05m2
2. hall z komunikacją 7,75m2
3. kotłownia 3,85m2
4. kuchnia 10,00m2
5. pokój dzienny z jadalnią 25,50m2
6. pokój 10,55m2
7. pokój 9,50m2
8. łazienka 4,75m2
9. pokój 10,45m2
> RAZEM: 87,40
+ 10. garaż 19,40m2
STRYCH:
+ około 30m2
+ doprowadzone światło i ogrzewanie
+ strop ocieplony
> dach nieocieplony (zakupiona wełna i płyty do ocieplenia)
TERENY REKREACYJNE:
> tereny zielone - duża przestrzeń spacerowa
> 4-6 minut jazdy autem: las Porszewice, staw wędkarski, staw-kąpielisko, park linowy, Centrum Sportu i Rekreacji Ośrodek Nad Stawem, pływalnia miejska.
Zapraszam do kontaktu:
Bożena Wachowicz
511*488*139, 662*090*777
e-mail: bozena.wachowicz@4alternatywy.com
Zapewniamy kompleksową obsługę finansową i prawną przy zakupie nieruchomości.
POMAGAMY W UZYSKANIU NAJLEPIEJ DOPASOWANEGO DO POTRZEB KREDYTU.
Ogłoszenie to nie stanowi oferty w rozumieniu Kodeksu Cywilnego, a dane w nim zawarte mają jedynie charakter informacyjny i mogą ulec zmianie.
oraz z dobrym dojazdem do centrum Konstantynowa Łódzkiego bądź Łodzi
- to ta ALTERNATYWA spełni oczekiwania.
LOKALIZACJA:
okolice Konstantynowa Łódzkiego ul. Wycieczkowej i Florentynowa
Dom położony
- tylko 8 km od Łodzi
- sklepy osiedlowe, dyskonty: 4-9 minut jazdy samochodem
Z przyjemnością przedstawiam Państwu do sprzedaży dom parterowy z poddaszem
o powierzchni użytkowej 124 m2 z 3 sypialniami oraz z tarasem i ogrodem
w cenie 990 000 zł.
Ta oferta tylko u Nas!
Bożena Wachowicz
511*488*139, 662*090*777
Nieruchomość usytuowana jest na prostokątnej działce o powierzchni 970 m2,
a wypielęgnowana roślinność osłaniająca ze wszystkich stron dom od sąsiadów dba dodatkowo o prywatność domowników.
Stan nieruchomości bardzo dobry
- bez konieczności ponoszenia zbędnych, dodatkowych nakładów finansowych.
ATUTY:
+ w cenie domu elementy stałe umeblowania wraz z kuchnią i sprzętem AGD
+ drzwi i rolety okienne antywłamaniowe
+ piękny i przestronny ogród
+ wysoka roślinność ogrodzeniowa pełni funkcję żywopłotu, dając prywatność domownikom
+ duży taras
+ alarm
+ brama i garaż z napędem elektrycznym na pilota
+ bardzo spokojna i cicha okolica dająca dodatkowo dużo przestrzeni na spacery i odpoczynek
+ dojazd drogą asfaltową
DANE TECHNICZNE:
> odbiór domu 2013 r.
> ogrzewanie podłogowe: w łazience, kuchni i przedpokoju
>> pozostałe pomieszczenie: ogrzewanie grzejnikowe
> piec gazowy c.o.+c.w. Vaillant
> materiał budowlany: ceramiczny max
> dach: dachówka betonowa, kąt nachylenia dachu 30 st.
>> 2 okna dachowe
> elewacja: styropian 20 cm
MEDIA:
+ gaz płynny (zbiornik naziemny - zużycie roczne około 2 200 zł )
+ przydomowa oczyszczalnia rozsączająca (opróżnienie 280 zł rocznie)
+ woda miejska
+ prąd
>> 124,05 m2: powierzchnia użytkowa z garażem
>> 151,40 m2: powierzchnia zabudowy
>> 713,55 m2: kubatura brutto
>> 7,22 m2: wysokość budynku
POMIESZCZENIA:
1. przedsionek 5,05m2
2. hall z komunikacją 7,75m2
3. kotłownia 3,85m2
4. kuchnia 10,00m2
5. pokój dzienny z jadalnią 25,50m2
6. pokój 10,55m2
7. pokój 9,50m2
8. łazienka 4,75m2
9. pokój 10,45m2
> RAZEM: 87,40
+ 10. garaż 19,40m2
STRYCH:
+ około 30m2
+ doprowadzone światło i ogrzewanie
+ strop ocieplony
> dach nieocieplony (zakupiona wełna i płyty do ocieplenia)
TERENY REKREACYJNE:
> tereny zielone - duża przestrzeń spacerowa
> 4-6 minut jazdy autem: las Porszewice, staw wędkarski, staw-kąpielisko, park linowy, Centrum Sportu i Rekreacji Ośrodek Nad Stawem, pływalnia miejska.
Zapraszam do kontaktu:
Bożena Wachowicz
511*488*139, 662*090*777
e-mail: bozena.wachowicz@4alternatywy.com
Zapewniamy kompleksową obsługę finansową i prawną przy zakupie nieruchomości.
POMAGAMY W UZYSKANIU NAJLEPIEJ DOPASOWANEGO DO POTRZEB KREDYTU.
Ogłoszenie to nie stanowi oferty w rozumieniu Kodeksu Cywilnego, a dane w nim zawarte mają jedynie charakter informacyjny i mogą ulec zmianie.
| Informacje podstawowe | ||
|---|---|---|
| Rodzaj nieruchomości | Dom | |
| Rodzaj transakcji | Sprzedaż | |
| Rynek | Wtórny | |
| Województwo | łódzkie | |
| Miejscowość | Konstantynów Łódzki | |
| Prąd (przyłącze) | Tak | |
| Woda (przyłącze) | Tak | |
| Gaz (przyłącze) | Tak | |
| Kanalizacja | Tak | |
| Warunki zabudowy | Tak | |
| Parking | Tak | |
| Rok budowy | 2013 | |
| Informacje dodatkowe | ||
|---|---|---|
| Powierzchnia działki | 970 | |
| Położenie działki | Teren płaski | |
| Kształt działki | Prostokąt | |
| Liczba pięter | Tylko parter | |
| Liczba pokoi | 4 | |
| Liczba sypialni | 3 | |
| Liczba łazieniek | 1 | |
Kontakt:
Bożena Wachowicz
Tel.: 511 488 139
Nr ref.: O-17828
Bożena Wachowicz
Tel.: 511 488 139
Nr ref.: O-17828
