Komfortowe mieszkanie 70 m2
Mieszkanie na sprzedaż, cena 880000 PLN, 12525 PLN/m2, powierzchnia 70 m2Kraków, małopolskie, Polska

















Oferta tylko u nas!
ALTERNATYWA dla osób, które szukają dużego, funkcjonalnego mieszkania w nowym bloku- gotowego do zamieszkania z szybkim i dogodnym dojazdem do centrum Krakowa.
LOKALIZACJA:
Kraków- Wzgórza Krzesławickie
Przedstawiam do sprzedaży mieszkanie 3 pokojowe
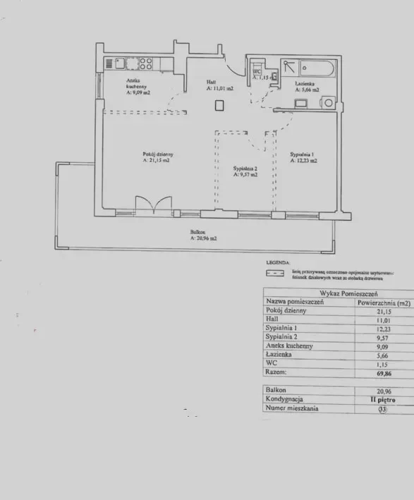
o powierzchni 70,26 m2, usytuowane w kameralnym 4 piętrowym bloku na 2 piętrze
w cenie 880. 000 zł. wraz z komórką lokatorską.
Cena za 1 m2 12.524.000 zł
Dorota Kleszcz
tel. 728 341 653
ATUTY:
> pełna własność z założoną Księgą Wieczystą
> kameralny blok z 2014 roku
> cicha dzielnica
> kuchnia wyposażona w sprzęt AGD (zmywarka, piekarnik, płyta indukcyjna)
> łazienka z wanną i prysznicem, nowocześnie wykończona
> osobne WC
> mieszkanie gotowe do wprowadzenia czyste, zadbane i urządzone funkcjonalnie
> duży balkon zajmujący przestrzeń dookoła mieszkania 20m2 !
> w pełni rozkładowe, przestrzenne i jasne
> dookoła otoczone zielenią
> klatka zadbana i czysta
> znakomita lokalizacja
POMIESZCZENIA:
Mieszkanie jest w pełni rozkładowe i składa się z:
- salon 21,15m2
- aneks kuchenny 9,09m2 (można osobno wydzielić kuchnię)
- sypialnia nr 1 12,23m2
- sypialnia nr 2 9,09m2
- łazienki 5,66m2
-osobne WC 1,15m2
- duży hall 11,01m2
OPŁATY:
Czynsz: 1000 zł za 5 osób
(czynsz zawiera opłaty za ogrzewanie, ciepłą i zimną wodę oraz odpady, fundusz remontowy, oświetlenie części wspólnych, garaż i komórkę lokatorską)
Dodatkowo
-do mieszkania przynależy garaż w cenie 45.000 zł
Media: ogrzewanie miejskie, woda miejska, prąd, kanalizacja
OKOLICA:
Okoliczny ciąg komunikacyjny gwarantuje dobre połączenia komunikacji publicznej
z wszelkimi istotnymi punktami na mapie Krakowa:
> przystanek autobusowy: (nr 122,149,180,202,212,222,232,262,422)
> pętla tramwajowo- autobusowa 15 minuty pieszo w linii prostej oddana do użytku listopad 2025
> rozbudowa ul. Kocmyrzowskiej wraz z budowaną drogą ekspresową S7
PRZYKŁADOWE ODLEGŁOŚCI:
> Rynek Główny 13 km
> Dworzec Kolejowy Kraków Główny 11 km
W pobliżu pełna infrastruktura:
- sklepy: Biedronka, Rossman, siłownia, paczkomaty, placówki medyczne ( w tym pogotowie stomatologiczne)
TERENY REKREACYJNE:
- Park Miejski Zielony Jar
- Fort 49 Krzesławice
Dorota Kleszcz
tel. 728*341*653
e-mail: dorota.kleszcz@4alternatywy.com
Zapewniamy kompleksową obsługę finansową i prawną przy zakupie nieruchomości.
POMAGAMY W UZYSKANIU NAJLEPIEJ DOPASOWANEGO DO POTRZEB KREDYTU.
Ogłoszenie to nie stanowi oferty w rozumieniu Kodeksu Cywilnego, a dane w nim zawarte mają jedynie charakter informacyjny i mogą ulec zmianie.
ALTERNATYWA dla osób, które szukają dużego, funkcjonalnego mieszkania w nowym bloku- gotowego do zamieszkania z szybkim i dogodnym dojazdem do centrum Krakowa.
LOKALIZACJA:
Kraków- Wzgórza Krzesławickie
Przedstawiam do sprzedaży mieszkanie 3 pokojowe
o powierzchni 70,26 m2, usytuowane w kameralnym 4 piętrowym bloku na 2 piętrze
w cenie 880. 000 zł. wraz z komórką lokatorską.
Cena za 1 m2 12.524.000 zł
Dorota Kleszcz
tel. 728 341 653
ATUTY:
> pełna własność z założoną Księgą Wieczystą
> kameralny blok z 2014 roku
> cicha dzielnica
> kuchnia wyposażona w sprzęt AGD (zmywarka, piekarnik, płyta indukcyjna)
> łazienka z wanną i prysznicem, nowocześnie wykończona
> osobne WC
> mieszkanie gotowe do wprowadzenia czyste, zadbane i urządzone funkcjonalnie
> duży balkon zajmujący przestrzeń dookoła mieszkania 20m2 !
> w pełni rozkładowe, przestrzenne i jasne
> dookoła otoczone zielenią
> klatka zadbana i czysta
> znakomita lokalizacja
POMIESZCZENIA:
Mieszkanie jest w pełni rozkładowe i składa się z:
- salon 21,15m2
- aneks kuchenny 9,09m2 (można osobno wydzielić kuchnię)
- sypialnia nr 1 12,23m2
- sypialnia nr 2 9,09m2
- łazienki 5,66m2
-osobne WC 1,15m2
- duży hall 11,01m2
OPŁATY:
Czynsz: 1000 zł za 5 osób
(czynsz zawiera opłaty za ogrzewanie, ciepłą i zimną wodę oraz odpady, fundusz remontowy, oświetlenie części wspólnych, garaż i komórkę lokatorską)
Dodatkowo
-do mieszkania przynależy garaż w cenie 45.000 zł
Media: ogrzewanie miejskie, woda miejska, prąd, kanalizacja
OKOLICA:
Okoliczny ciąg komunikacyjny gwarantuje dobre połączenia komunikacji publicznej
z wszelkimi istotnymi punktami na mapie Krakowa:
> przystanek autobusowy: (nr 122,149,180,202,212,222,232,262,422)
> pętla tramwajowo- autobusowa 15 minuty pieszo w linii prostej oddana do użytku listopad 2025
> rozbudowa ul. Kocmyrzowskiej wraz z budowaną drogą ekspresową S7
PRZYKŁADOWE ODLEGŁOŚCI:
> Rynek Główny 13 km
> Dworzec Kolejowy Kraków Główny 11 km
W pobliżu pełna infrastruktura:
- sklepy: Biedronka, Rossman, siłownia, paczkomaty, placówki medyczne ( w tym pogotowie stomatologiczne)
TERENY REKREACYJNE:
- Park Miejski Zielony Jar
- Fort 49 Krzesławice
Dorota Kleszcz
tel. 728*341*653
e-mail: dorota.kleszcz@4alternatywy.com
Zapewniamy kompleksową obsługę finansową i prawną przy zakupie nieruchomości.
POMAGAMY W UZYSKANIU NAJLEPIEJ DOPASOWANEGO DO POTRZEB KREDYTU.
Ogłoszenie to nie stanowi oferty w rozumieniu Kodeksu Cywilnego, a dane w nim zawarte mają jedynie charakter informacyjny i mogą ulec zmianie.
| Informacje podstawowe | ||
|---|---|---|
| Rodzaj nieruchomości | Mieszkanie | |
| Rodzaj transakcji | Sprzedaż | |
| Rynek | Wtórny | |
| Województwo | małopolskie | |
| Miejscowość | Kraków | |
| Prąd (przyłącze) | Tak | |
| Woda (przyłącze) | Tak | |
| Gaz (przyłącze) | Nie | |
| Kanalizacja | Tak | |
| Warunki zabudowy | Tak | |
| Parking | Tak | |
| Rodzaj budynku | Blok mieszkalny | |
| Rok budowy | 2014 | |
| Informacje dodatkowe | ||
|---|---|---|
| Piętro | 2 | |
| Liczba pięter | 4 | |
| Liczba pokoi | 3 | |
| Liczba sypialni | 2 | |
| Liczba łazieniek | 1 | |
| Stan obiektu | Wykończony | |
| Rodzaj kuchni | Aneks | |
| Materiał | Beton | |
| Technologia | Tradycyjna | |
| Zadaszenie (materiał) | Blacha | |
| Ogrzewanie | Miejskie | |
| Dostępność | Natychmiast | |
| Balkon | Tak | |
| Loggia | Tak | |
| Taras | Tak | |
| Ogród | Nie | |
| Piwnica | Nie | |
| Poddasze | Nie | |
| Winda | Tak | |
Kontakt:
Dorota Kleszcz
Tel.: 728 341 653
Nr ref.: O-17782
Dorota Kleszcz
Tel.: 728 341 653
Nr ref.: O-17782
