Indywidualny projekt, przestronny dom
Dom na sprzedaż, cena 2490000 PLN, 7014 PLN/m2, powierzchnia 355 m2Kiełczów, dolnośląskie, Polska



























355 m² | działka 1900 m² | 6 pokoi | garaż 40 m² | sauna, fitness, klimatyzacja
TA OFERTA TYLKO U NAS!
Jeśli szukasz wyjątkowego miejsca dla swojej rodziny, to dobrze trafiłeś - ta ALTERNATYWA spełni większość Twoich wymagań!
Więcej informacji: Renata tel. *780*771*848
e-mail: renata.niwinska@4alternatywy.com
Przedstawiamy wyjątkowy dom, zaprojektowany z pasją i wybudowany z wykorzystaniem najlepszych materiałów. Bez kompromisów i cięcia kosztów.
Tutaj stworzysz dom marzeń - przestronne wnętrza i funkcjonalny rozkład pomieszczeń dają ogromne możliwości dowolnej aranżacji, według indywidualnych potrzeb i upodobań. Duży ogród to dodatkowa przestrzeń do wypoczynku i relaksu na świeżym powietrzu.
Dom również może służyć jako siedziba firmy - przestronne wnętrza stwarzają ogromne możliwości aranżacji, można połączyć część prywatną na górze z częścią przeznaczoną na firmę i działalność gospodarczą.
LOKALIZACJA
Prestiżowa część Kiełczowa – zaledwie 1300 m od granicy Wrocławia.
Okolica wyłącznie nowych rezydencji, cisza i dużo zieleni.
Doskonała infrastruktura: szkoły, przedszkola, sklepy, centrum handlowe, restauracje, siłownia, kompleks rekreacyjno-rozrywkowy „Zielona Oliwka” z placami zabaw, terenami spacerowymi i mini-zoo.
Świetne połączenia komunikacyjne – autobusy 911, 921, 931 do Placu Grunwaldzkiego, szybki dojazd do centrum Wrocławia i obwodnicy.
Do Wrocławia można dojechać trzema różnymi trasami - bez obawy o korki i trudności z dotarciem do miasta.
DOM I DZIAŁKA
Dom o powierzchni 355 m² na działce 1900 m² z pięknie zagospodarowanym ogrodem i dużą otwartą przestrzenią. Budynek wykonany według indywidualnego projektu i z najwyższej jakości materiałów.
Nieruchomość łączy prestiż, komfort i solidność.
Nad garażem znajduje się wyciszone pomieszczenie przeznaczone dla fitness i prywatną siłownię. Może to być również pokój gier, sala bilard, przestrzeń dla dzieci lub pokój telewizyjny, albo - dodatkowa sypialnia.
Dom jest sprzedawany z całym wyposażeniem i umeblowaniem: w salonie są nowe kanapy KLER z elektrycznym sterowaniem każdego siedziska - komfort i odpoczynek w pozycji, jakiej kto lubi. Meble sprowadzone z Hiszpanii, kuchnia wyposażona w sprzęt AGD z meblami wykonanymi na wymiar z drewna.
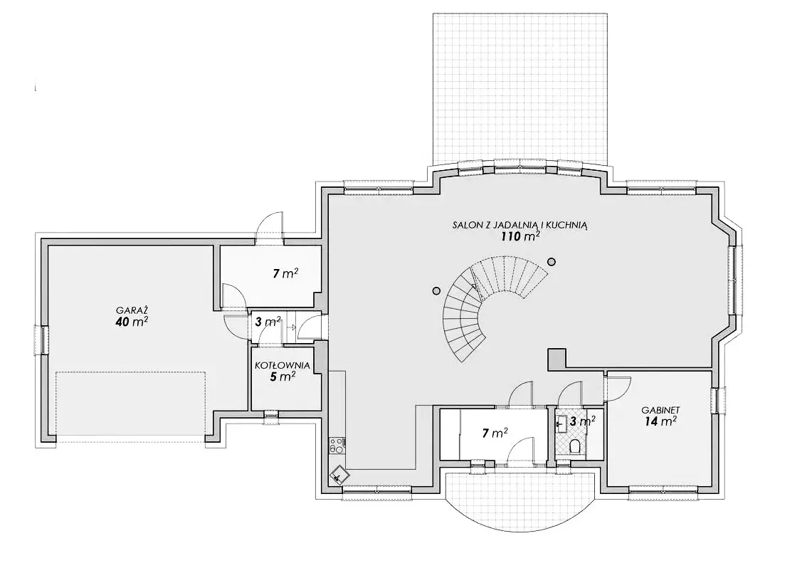
Rozkład pomieszczeń
Parter:
• przestronny salon z jadalnią i kuchnią – 110 m², z dużymi przeszkleniami i wyjściem na taras od strony południowej
• reprezentacyjne półokrągłe schody wykończone drewnem egzotycznym
• gabinet
• łazienka dla gości
• pomieszczenia gospodarcze przyległe do garażu
• garaż dwustanowiskowy (40 m², brama Hormann 5,5 m) - wystarczająco dużo miejsca do zaparkowania dwóch samochodów typu SUV oraz miejsce na motocykle
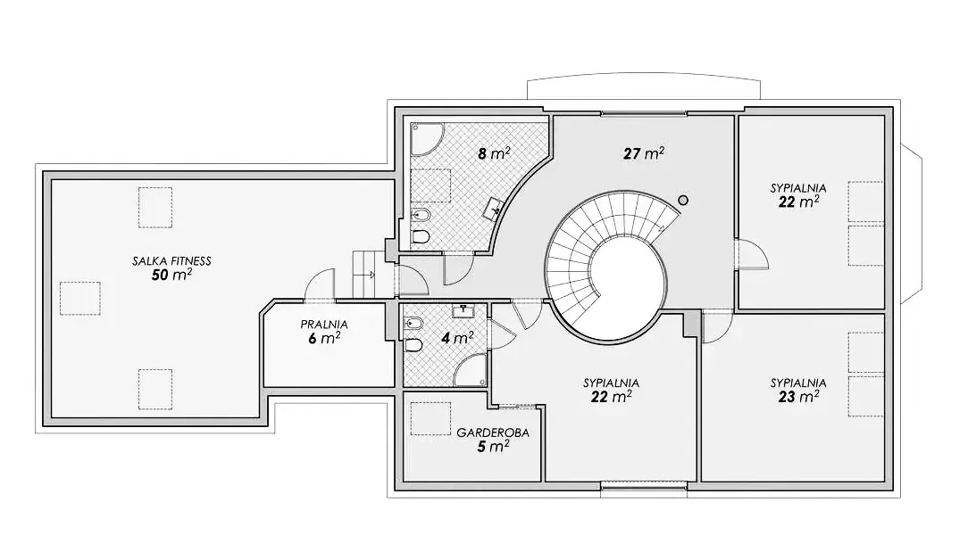
Piętro:
• apartament główny: sypialnia 22 m², garderoba, łazienka z kabiną z hydromasażem, sauną parową, aromaterapią, oświetleniem LED i multimediami
• 2 przestronne sypialnie (po 22 m² każda)
• łazienka - pokój kąpielowy z wanną narożną
• pralnia z suszarnią
• sala fitness nad garażem, zaprojektowana tak, by hałas nie przenosił się do pozostałej części domu
Poddasze:
• 30 m² powierzchni strychowej, idealne na przechowywanie
WYPOSAŻENIE I TECHNOLOGIA
• kuchnia z litego drewna na zamówienie + pełny sprzęt AGD
• meble z Hiszpanii oraz skórzane Kler z elektryczną regulacją miejsc siedzących
• klimatyzacja, rekuperacja, nowoczesny piec kondensacyjny Viessmann
• system alarmowy, monitoring, antywłamaniowe i dźwiękochłonne okna
• oświetlony ogród i taras
• dom wykonany z Ytong, kryty dachówką
• przydomowa ekologiczna oczyszczalnia ścieków
• kominek w salonie
BEZPIECZEŃSTWO
Osiedle prestiżowych rezydencji, regularnie patrolowane przez ochronę ASCO.
Sąsiedztwo wyłącznie nowych, zagospodarowanych posesji – gwarancja spokoju i prestiżu.
Dom jest wyposażony w instalację alarmową.
NAJWAŻNIEJSZE ATUTY:
• luksusowy, indywidualny projekt i solidne wykonanie
• przestronny salon z dużymi przeszkleniami i tarasem południowym
• główna sypialnia z z sauną, hydromasażem i prywatną garderobą
• sala fitness,
• pralnia z suszarnią,
• garaż na 2 duże auta
• pełne wyposażenie wliczone w cenę
• wyjątkowa lokalizacja z prestiżowym sąsiedztwem i pełną infrastrukturą
Zapraszamy na prezentację tego wyjątkowego domu. Jesteśmy dostępni 7 dni w tygodniu.
Zadzwoń i umów się na prezentację – ta rezydencja robi wrażenie na żywo!
Masz dodatkowe pytania? ZADZWOŃ!
Renata tel. *780*771*848*
Szukasz podobnych ofert? ZADZWOŃ!
Zapewniamy kompleksową i bezpłatną obsługę prawno-finansową.
Pomagamy w uzyskaniu najbardziej korzystnego dla Klienta kredytu hipotecznego.
Dokładamy wszelkich starań, aby transakcja przebiegała sprawnie i przy minimalnym zaangażowaniu Kupującego. Towarzyszymy Państwu przez cały proces zakupu nieruchomości do momentu przekazania kluczy i spisania protokołu zdawczo-odbiorczego nieruchomości. Na każdym etapie służymy radą i doświadczeniem. Zapewniamy kompleksową i bezpłatną obsługę finansową i prawną przy zakupie nieruchomości.
Ogłoszenie nie stanowi oferty w rozumieniu Kodeksu Cywilnego, a dane w nim zawarte mają jedynie charakter informacyjny i mogą ulec zmianie. Treść niniejszego ogłoszenia nie stanowi oferty handlowej w rozumieniu Kodeksu Cywilnego
TA OFERTA TYLKO U NAS!
Jeśli szukasz wyjątkowego miejsca dla swojej rodziny, to dobrze trafiłeś - ta ALTERNATYWA spełni większość Twoich wymagań!
Więcej informacji: Renata tel. *780*771*848
e-mail: renata.niwinska@4alternatywy.com
Przedstawiamy wyjątkowy dom, zaprojektowany z pasją i wybudowany z wykorzystaniem najlepszych materiałów. Bez kompromisów i cięcia kosztów.
Tutaj stworzysz dom marzeń - przestronne wnętrza i funkcjonalny rozkład pomieszczeń dają ogromne możliwości dowolnej aranżacji, według indywidualnych potrzeb i upodobań. Duży ogród to dodatkowa przestrzeń do wypoczynku i relaksu na świeżym powietrzu.
Dom również może służyć jako siedziba firmy - przestronne wnętrza stwarzają ogromne możliwości aranżacji, można połączyć część prywatną na górze z częścią przeznaczoną na firmę i działalność gospodarczą.
LOKALIZACJA
Prestiżowa część Kiełczowa – zaledwie 1300 m od granicy Wrocławia.
Okolica wyłącznie nowych rezydencji, cisza i dużo zieleni.
Doskonała infrastruktura: szkoły, przedszkola, sklepy, centrum handlowe, restauracje, siłownia, kompleks rekreacyjno-rozrywkowy „Zielona Oliwka” z placami zabaw, terenami spacerowymi i mini-zoo.
Świetne połączenia komunikacyjne – autobusy 911, 921, 931 do Placu Grunwaldzkiego, szybki dojazd do centrum Wrocławia i obwodnicy.
Do Wrocławia można dojechać trzema różnymi trasami - bez obawy o korki i trudności z dotarciem do miasta.
DOM I DZIAŁKA
Dom o powierzchni 355 m² na działce 1900 m² z pięknie zagospodarowanym ogrodem i dużą otwartą przestrzenią. Budynek wykonany według indywidualnego projektu i z najwyższej jakości materiałów.
Nieruchomość łączy prestiż, komfort i solidność.
Nad garażem znajduje się wyciszone pomieszczenie przeznaczone dla fitness i prywatną siłownię. Może to być również pokój gier, sala bilard, przestrzeń dla dzieci lub pokój telewizyjny, albo - dodatkowa sypialnia.
Dom jest sprzedawany z całym wyposażeniem i umeblowaniem: w salonie są nowe kanapy KLER z elektrycznym sterowaniem każdego siedziska - komfort i odpoczynek w pozycji, jakiej kto lubi. Meble sprowadzone z Hiszpanii, kuchnia wyposażona w sprzęt AGD z meblami wykonanymi na wymiar z drewna.
Rozkład pomieszczeń
Parter:
• przestronny salon z jadalnią i kuchnią – 110 m², z dużymi przeszkleniami i wyjściem na taras od strony południowej
• reprezentacyjne półokrągłe schody wykończone drewnem egzotycznym
• gabinet
• łazienka dla gości
• pomieszczenia gospodarcze przyległe do garażu
• garaż dwustanowiskowy (40 m², brama Hormann 5,5 m) - wystarczająco dużo miejsca do zaparkowania dwóch samochodów typu SUV oraz miejsce na motocykle
Piętro:
• apartament główny: sypialnia 22 m², garderoba, łazienka z kabiną z hydromasażem, sauną parową, aromaterapią, oświetleniem LED i multimediami
• 2 przestronne sypialnie (po 22 m² każda)
• łazienka - pokój kąpielowy z wanną narożną
• pralnia z suszarnią
• sala fitness nad garażem, zaprojektowana tak, by hałas nie przenosił się do pozostałej części domu
Poddasze:
• 30 m² powierzchni strychowej, idealne na przechowywanie
WYPOSAŻENIE I TECHNOLOGIA
• kuchnia z litego drewna na zamówienie + pełny sprzęt AGD
• meble z Hiszpanii oraz skórzane Kler z elektryczną regulacją miejsc siedzących
• klimatyzacja, rekuperacja, nowoczesny piec kondensacyjny Viessmann
• system alarmowy, monitoring, antywłamaniowe i dźwiękochłonne okna
• oświetlony ogród i taras
• dom wykonany z Ytong, kryty dachówką
• przydomowa ekologiczna oczyszczalnia ścieków
• kominek w salonie
BEZPIECZEŃSTWO
Osiedle prestiżowych rezydencji, regularnie patrolowane przez ochronę ASCO.
Sąsiedztwo wyłącznie nowych, zagospodarowanych posesji – gwarancja spokoju i prestiżu.
Dom jest wyposażony w instalację alarmową.
NAJWAŻNIEJSZE ATUTY:
• luksusowy, indywidualny projekt i solidne wykonanie
• przestronny salon z dużymi przeszkleniami i tarasem południowym
• główna sypialnia z z sauną, hydromasażem i prywatną garderobą
• sala fitness,
• pralnia z suszarnią,
• garaż na 2 duże auta
• pełne wyposażenie wliczone w cenę
• wyjątkowa lokalizacja z prestiżowym sąsiedztwem i pełną infrastrukturą
Zapraszamy na prezentację tego wyjątkowego domu. Jesteśmy dostępni 7 dni w tygodniu.
Zadzwoń i umów się na prezentację – ta rezydencja robi wrażenie na żywo!
Masz dodatkowe pytania? ZADZWOŃ!
Renata tel. *780*771*848*
Szukasz podobnych ofert? ZADZWOŃ!
Zapewniamy kompleksową i bezpłatną obsługę prawno-finansową.
Pomagamy w uzyskaniu najbardziej korzystnego dla Klienta kredytu hipotecznego.
Dokładamy wszelkich starań, aby transakcja przebiegała sprawnie i przy minimalnym zaangażowaniu Kupującego. Towarzyszymy Państwu przez cały proces zakupu nieruchomości do momentu przekazania kluczy i spisania protokołu zdawczo-odbiorczego nieruchomości. Na każdym etapie służymy radą i doświadczeniem. Zapewniamy kompleksową i bezpłatną obsługę finansową i prawną przy zakupie nieruchomości.
Ogłoszenie nie stanowi oferty w rozumieniu Kodeksu Cywilnego, a dane w nim zawarte mają jedynie charakter informacyjny i mogą ulec zmianie. Treść niniejszego ogłoszenia nie stanowi oferty handlowej w rozumieniu Kodeksu Cywilnego
| Informacje podstawowe | ||
|---|---|---|
| Rodzaj nieruchomości | Dom | |
| Rodzaj transakcji | Sprzedaż | |
| Rynek | Wtórny | |
| Województwo | dolnośląskie | |
| Miejscowość | Kiełczów | |
| Prąd (przyłącze) | Tak | |
| Woda (przyłącze) | Tak | |
| Gaz (przyłącze) | Tak | |
| Kanalizacja | Tak | |
| Warunki zabudowy | Tak | |
| Parking | Tak | |
| Rodzaj budynku | Rezydencja | |
| Rok budowy | 2015 | |
| Informacje dodatkowe | ||
|---|---|---|
| Powierzchnia działki | 1900 | |
| Położenie działki | Teren płaski | |
| Kształt działki | Prostokąt | |
| Liczba pięter | 1 | |
| Liczba pokoi | 6 | |
| Liczba sypialni | 4 | |
| Liczba łazieniek | 3 | |
| Stan obiektu | Do użytku | |
| Rodzaj kuchni | Aneks | |
| Materiał | Ytong | |
| Technologia | Tradycyjna | |
| Zadaszenie (materiał) | Dachówka | |
| Ogrzewanie | Gazowe | |
| Dostępność | Natychmiast | |
| Balkon | Nie | |
| Loggia | Nie | |
| Taras | Tak | |
| Ogród | Tak | |
| Piwnica | Nie | |
| Poddasze | Tak | |
| Winda | Nie | |
| Otoczenie | ||
|---|---|---|
| Otoczenie | Wolnostojące domki jednorodzinne | |
| Głośność | Cicho | |
| Las | Tak | |
| Łąka | Tak | |
| Góry | Nie | |
| Jezioro | Nie | |
| Rzeka | Tak | |
| Morze | Nie | |
| Park | Tak | |
| Bank | Tak | |
| Restauracja | Tak | |
| Bar / pub | Tak | |
| Szkoła podstawowa | Tak | |
| Liceum / Technikum | Tak | |
| Uczelnia | Tak | |
| Przedszkole | Tak | |
| Basen | Tak | |
| Fitnes | Tak | |
| Pralnia | Tak | |
| Apteka | Tak | |
| Fryzjer | Tak | |
| Supermarket | Tak | |
| Sklep spożywczy | Tak | |
| Weterynarz | Tak | |
Kontakt:
Renata Niwińska
Tel.: 780 771 848
Nr ref.: O-17623
Renata Niwińska
Tel.: 780 771 848
Nr ref.: O-17623
