Działka z rozpoczętą budową.
Działka na sprzedaż, cena 250000 PLN, 148 PLN/m2, powierzchnia 1685 m2Kłodawa, wielkopolskie, Polska








Jeśli marzysz o budowie funkcjonalnego domu dla swojej rodziny ale ciągle zastanawiasz się jak miałby wyglądać, sprawdź naszą ALTERNATYWĘ !
Kontakt:
Rafał Sikorski tel. 606*892*245
LOKALIZACJA:
Kotków, gmina Grabów, powiat łęczycki
Wieś na pograniczu województwa łódzkiego i wielkopolskiego.
Zapraszamy do zakupu działki w cichej i spokojnej wsi Kotków.
Nieruchomość gruntowa o powierzchni 1685 m2, ogrodzona, z dojazdem drogą gruntową utwardzoną. Media - prąd, woda przy działce.
Działka budowlana z rozpoczętą inwestycją.
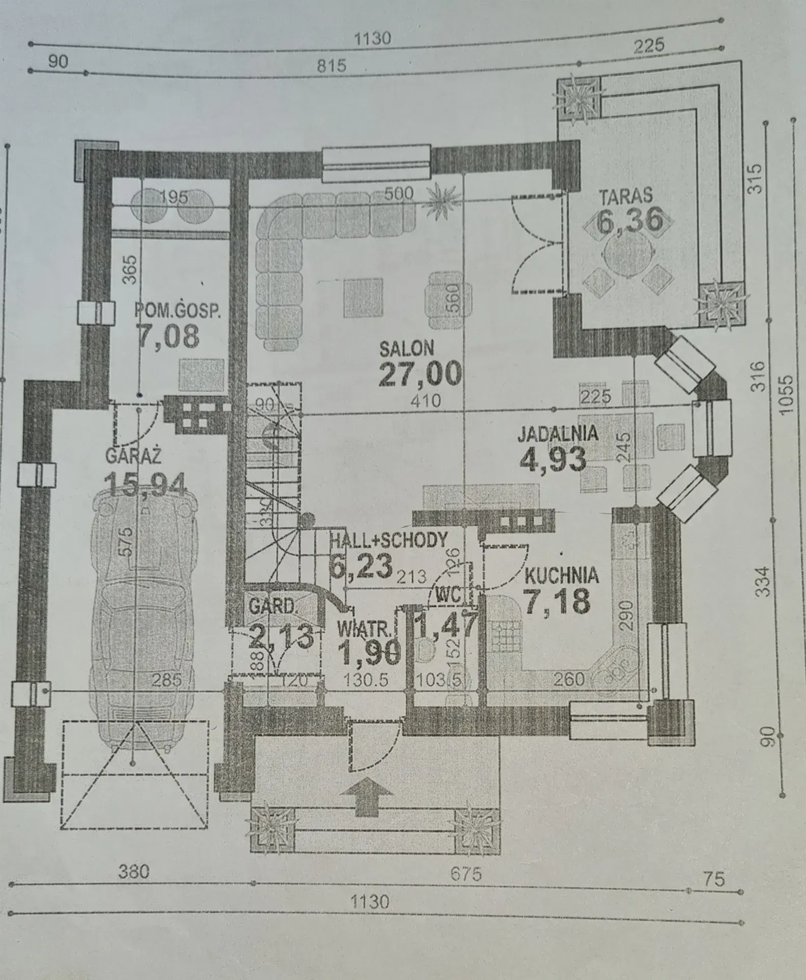
Projekt domu z 2018 roku, zrobiony na indywidualne zamówienie, przewidujący budowę budynku mieszkalnego jednorodzinnego, dwukondygnacyjnego, z miejscem garażowym w bryle domu.
Parter o powierzchni użytkowej 73,86 m2, zaprojektowany jako część dzienna, składający się z:
* salonu z jadalnią oraz aneks kuchennym
* wiatrołapu
* garderoby
* WC
* korytarza z klatką schodową
* garażu jednostanowiskowego.
Piętro, ze skosami ( dach kopertowy), o powierzchni użytkowej 41,79 m2, składający się z:
* trzech sypialni
* łazienki
Dodatkowo na działce znajdują dwa stare budynki do kapitalnego remont lub wyburzenia.
ATUTY:
- Cicha i spokojna okolica
- Gotowy projekt domu
- Wydane pozwolenie na budowę
- Rozpoczęta budowa
- Dodatkowe budynki na posesji.
OKOLIOCA:
- Sklep spożywczy 2,5 km
- Szkoła podstawowa 5 km
- Markety, Punkty usługowe, Lokale gastronomiczne 10 km
- Krośniewice 14 km
- Grabów 12km
- Łęczyca 25 km
- Kłodawa 10 km
Ta działka czeka na Ciebie! Zapraszamy do kontaktu.
Rafał Sikorski 606*892*245
e-mail: rafal.sikorski@4alternatywy.com
Zapewniam kompleksową i bezpłatną obsługę finansową i prawną przy zakupie nieruchomości.
Ogłoszenie nie stanowi oferty w rozumieniu Kodeksu Cywilnego, a dane w nim zawarte mają jedynie charakter informacyjny i mogą ulec zmianie. Treść niniejszego ogłoszenia nie stanowi oferty handlowej w rozumieniu Kodeksu Cywilnego.
Kontakt:
Rafał Sikorski tel. 606*892*245
LOKALIZACJA:
Kotków, gmina Grabów, powiat łęczycki
Wieś na pograniczu województwa łódzkiego i wielkopolskiego.
Zapraszamy do zakupu działki w cichej i spokojnej wsi Kotków.
Nieruchomość gruntowa o powierzchni 1685 m2, ogrodzona, z dojazdem drogą gruntową utwardzoną. Media - prąd, woda przy działce.
Działka budowlana z rozpoczętą inwestycją.
Projekt domu z 2018 roku, zrobiony na indywidualne zamówienie, przewidujący budowę budynku mieszkalnego jednorodzinnego, dwukondygnacyjnego, z miejscem garażowym w bryle domu.
Parter o powierzchni użytkowej 73,86 m2, zaprojektowany jako część dzienna, składający się z:
* salonu z jadalnią oraz aneks kuchennym
* wiatrołapu
* garderoby
* WC
* korytarza z klatką schodową
* garażu jednostanowiskowego.
Piętro, ze skosami ( dach kopertowy), o powierzchni użytkowej 41,79 m2, składający się z:
* trzech sypialni
* łazienki
Dodatkowo na działce znajdują dwa stare budynki do kapitalnego remont lub wyburzenia.
ATUTY:
- Cicha i spokojna okolica
- Gotowy projekt domu
- Wydane pozwolenie na budowę
- Rozpoczęta budowa
- Dodatkowe budynki na posesji.
OKOLIOCA:
- Sklep spożywczy 2,5 km
- Szkoła podstawowa 5 km
- Markety, Punkty usługowe, Lokale gastronomiczne 10 km
- Krośniewice 14 km
- Grabów 12km
- Łęczyca 25 km
- Kłodawa 10 km
Ta działka czeka na Ciebie! Zapraszamy do kontaktu.
Rafał Sikorski 606*892*245
e-mail: rafal.sikorski@4alternatywy.com
Zapewniam kompleksową i bezpłatną obsługę finansową i prawną przy zakupie nieruchomości.
Ogłoszenie nie stanowi oferty w rozumieniu Kodeksu Cywilnego, a dane w nim zawarte mają jedynie charakter informacyjny i mogą ulec zmianie. Treść niniejszego ogłoszenia nie stanowi oferty handlowej w rozumieniu Kodeksu Cywilnego.
| Informacje podstawowe | ||
|---|---|---|
| Rodzaj nieruchomości | Działka | |
| Rodzaj transakcji | Sprzedaż | |
| Rynek | Wtórny | |
| Województwo | wielkopolskie | |
| Miejscowość | Kłodawa | |
| Prąd (przyłącze) | Nie | |
| Woda (przyłącze) | Nie | |
| Gaz (przyłącze) | Nie | |
| Kanalizacja | Nie | |
| Warunki zabudowy | Tak | |
| Parking | Tak | |
| Informacje dodatkowe | ||
|---|---|---|
| Powierzchnia działki | 1685 | |
| Położenie działki | Teren płaski | |
| Kształt działki | Prostokąt | |
| Rodzaj działki | Budowlana | |
| Dostępność | Natychmiast | |
| Otoczenie | ||
|---|---|---|
| Otoczenie | Wolnostojące domki jednorodzinne | |
| Głośność | Cicho | |
| Las | Nie | |
| Łąka | Tak | |
| Góry | Nie | |
| Jezioro | Nie | |
| Rzeka | Nie | |
| Morze | Nie | |
| Park | Nie | |
| Bank | Nie | |
| Restauracja | Nie | |
| Bar / pub | Nie | |
| Szkoła podstawowa | Tak | |
| Liceum / Technikum | Nie | |
| Uczelnia | Nie | |
| Żłobek | Nie | |
| Przedszkole | Nie | |
| Basen | Nie | |
| Fitnes | Nie | |
| Pralnia | Nie | |
| Apteka | Tak | |
| Fryzjer | Tak | |
| Supermarket | Tak | |
| Sklep spożywczy | Tak | |
Kontakt:
Rafał Sikorski
Tel.: 606 892 245
Nr ref.: O-17619
Rafał Sikorski
Tel.: 606 892 245
Nr ref.: O-17619
