Dom z 4 sypialniami- bliskie okolice Łodzi
Dom na sprzedaż, cena 849000 PLN, 6197 PLN/m2, powierzchnia 137 m2Konstantynów Łódzki, łódzkie, Polska
















Doskonała ALTERNATYWA dla osób szukających domu do którego dojazd do centrum Konstantynowa Łódzkiego i Łodzi jest szybki i sprawny, a jednocześnie chcesz odpocząć od zgiełku miasta.
LOKALIZACJA:
Konstantynów Łódzki okolice ul. Spółdzielczej
> Dom położony tylko 4 km od Retkini (Łódź)
Oferujemy do sprzedaży komfortowy i przytulny dom w zabudowie bliźniaczej (1/2 domu)
> o powierzchni użytkowej 136,89 m2 wraz z garażem
> w stanie deweloperskim
>> z 4 sypialniami lub z 3 sypialniami i garderobą
> na działce o powierzchni 599,50 m2
> w cenie 849 000 zł.
Ta oferta tylko u Nas!
Bożena Wachowicz
tel. 511*488*139, 662*090*777
W ofercie sprzedażowej posiadamy cały dom
- PRZY ZAKUPIE DRUGIEJ CZĘŚCI DOMU DODATKOWY RABAT.
Dom jest w trakcie budowy.
Termin oddania do użytkowania II kwartał 2026r.
MEDIA: prąd, pompa ciepła Atlantic 6kW, studnia głębinowa, szambo.
POMIESZCZENIA:
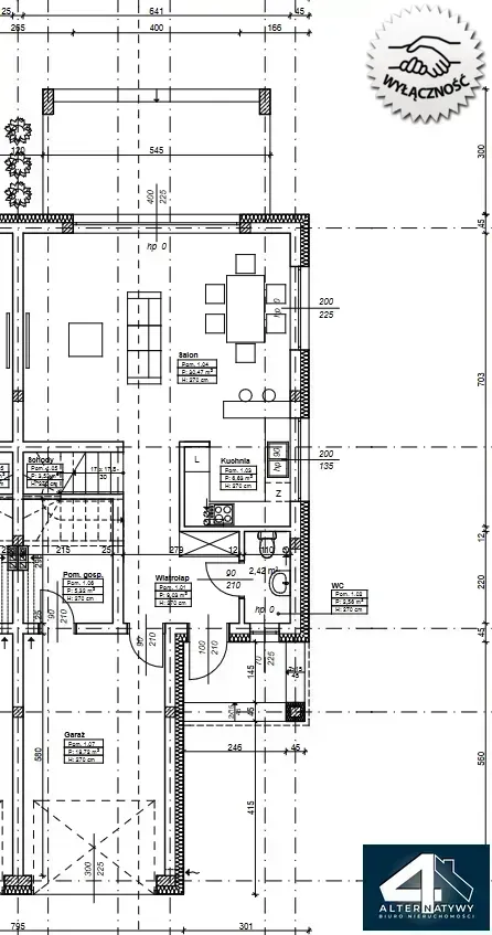
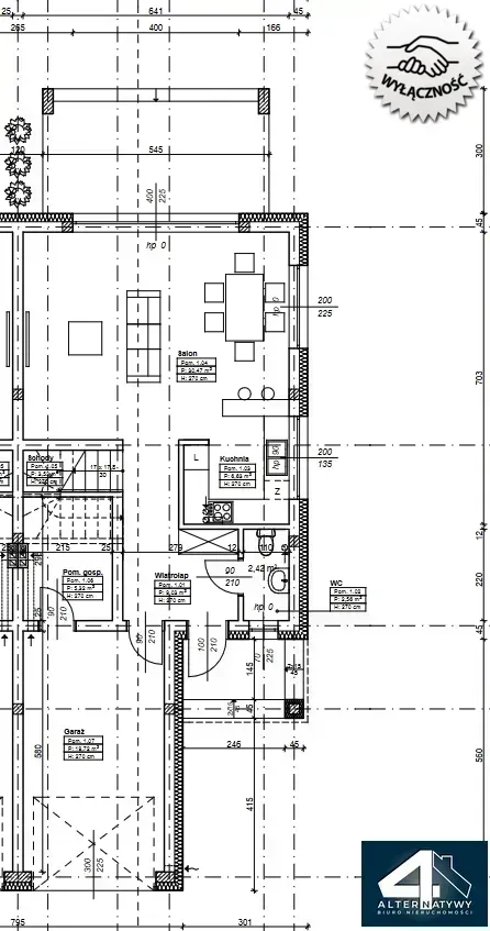
Na parterze o powierzchni 77,12 m2 znajduje się:
- przestronny salon z jadalnią 30,47 m2, dzięki czemu strefa dzienna staje się centrum rodzinnego życia
- kuchnia: 6,63 m2
- pomieszczenie gospodarcze: 5,32 m2
- toaleta: 2,42 m2
- wiatrołap: 9,03 m2
- schody: 3,53 m2
- garaż: 19,72 m2
Na piętrze o powierzchni użytkowej 59,77 m2 znajduje się:
- sypialnia nr 1: 12,42 m2
- sypialnia nr 2: 11,28 m2
- sypialnia nr 3: 11,20 m2
- sypialnia nr 4: 8,86
- łazienka: 6,52 m2
- pomieszczenie gospodarcze: 2,45 m2
- przedpokój: 7,04 m2
>> bądź z 3 sypialniami i garderobą
Położenie budynku: od frontu znajduje się wejście do domu oraz wysunięty taras nad garażem, a od strony ogrodu zadaszony taras.
Dokładny rozkład pomieszczeń można zobaczyć na załączonych rzutach.
W galerii zdjęć przedstawiamy wizualizacje pomieszczeń.
INFORMACJE TECHNICZNE:
> 1. MATERIAŁY KONSTRUKCYJNE:
Więźba dachowa:
- drewno konstrukcyjne klasy C24, zabezpieczone środkiem FOBOS
- łączniki ciesielskie i wiatrownice systemowe np. firmy SIMPSON
- kotwy mechaniczne do drewna klasy. 8.8
Elementy żelbetowe:
- beton klasy C25/30 w elementach konstrukcyjnych
- beton klasy C8/10 jako beton podkładowy
- stal zbrojeniowa klasy A-IIIN
- otulina fundamentów - boczna 30 mm, dolna 50mm
- otulina elementów nadziemia 30mm
Elementy murowe:
- pustaki ceramiczne POROTHERM P+W gr. 25 cm dla ścian nośnych (fb=15,0 MPa) na zaprawie M10
- bloczki betonowe kl. 15 MPa dla ścian fundamentowych
> 2. ELEMENTY BUDOWLANE
- Instalacje: wyposażenie w instalację wodociągową z projektowanej studni głębinowej, kanalizacyjną do szamba, elektryczną z projekt. przyłącza, centralnego ogrzewania przy zastosowaniu pompy ciepła. Komin dymowy systemowy np. Schiedel Rondo Plus.
- Wentylacja: wentylacja mechaniczna. W garażu i pom. technicznym wentylacja grawitacyjna, otwór nawiewny w dolnej części ściany zewnętrznej garażu. Dopływ powietrzna pod posadzką dla kominka w salonie. Wentylacja do okapu w kuchni.
+ Fundamenty: ławy fundamentowe betonowe wykonane z betonu C25/30 W8 o przekrojach 40x60, głębokość posadowienia: minimum -1,32 m poniżej poziomu posadzki parteru. Poziom posadowienia ław fundamentowych przyjęto na rzędnej 172,08m n.p.m.
+ Ściany fundamentowe: o gr. 24 cm z bloczków betonowych klasy 15MPa na zaprawie cementowej klasy M10 lub z betonu towarowego C16/20. Na ławach, stopach i ścianach fundamentowych izolacja przeciwwilgociowa (dwie warstwy papy
asfaltowej na lepiku). Ściana fundamentowa na całym obwodzie ocieplona twardym styropianem gr. 10cm.
+ Ściany zewnętrzne: gr. 45 cm (25cm+20cm), dwuwarstwowe, wykonane z pustaków ceramicznych Porotherm P+W, ocieplone zostaną warstwą 20 cm styropianu + tynk mineralny.
+ Wysokość budynku: 9.08 m.
>> Tynki i okładziny: Zewnętrzne - tradycyjne cementowo- wapienne pomalowanie. Tynki wewnętrzne- sufitów- płyty kartonowo gipsowe gr. 1,25 mocowane do aluminiowego stelaża. Tynki ścian tradycyjne – cementowo wapienne III kat.
>> Posadzka: pokoje – panele drewniane, a hall, kuchnia i sanitariaty – płytki terakota. Posadzki na gruncie ocieplone styropianem gr. 15 cm. Ostateczny dobór materiałów wykończeniowych należy do decyzji inwestora.
- Nadproża okienne i drzwiowe: nadproża prefabrykowane typu L-19 lub żelbetowe monolityczne z betonu C25/30 wykonane zgodnie z rysunkami konstrukcyjnymi.
- Belki żelbetowe: żelbetowe monolityczne z betonu C25/30.
- Wieńce: wieńce żelbetowe z betonu C25/30, zbrojone prętami podłużnymi #12 i strzemionami ze stali A-IIIN. Wieńce o wymiarach: 25x25, 25x15.
-Trzpienie i słupy żelbetowe: monolityczne żelbetowe, z betonu klasy C25/30, zbrojone podłużnie i poprzecznie strzemionami stalą A-IIIN.
- Dach: drewno konstrukcyjne C24 więźba tradycyjna, dach dwuspadowy o nachyleniu 35st. z lukarnami płaskimi o spadku 2st., wiązar jętkowy oparty na 4 ścianach stolcowych. Ściany boczne lukarny wykonane jako drewniane.
- Obróbki bl: rynny i rury spustowe z blachy ocynkowanej grubości 0,55 mm, dostosowane kolorem do pokrycia dachu.
- Izolacje przeciwwilgociowe: izolacja pozioma to 2 x papa asfaltowa na lepiku ułożona na ławach i ścianach fundamentowych na wys. 5 cm nad terenem lub folia izolacyjna.
Izolacja pozioma nieprzerwana na całej długości i przy zastosowaniu ocieplenia ze styropianu. Izolacja pionowa to
dwukrotna warstwa Dysperbitu na bocznej powierzchni ław i ścian fundamentowych do wysokości izolacji poziomej.
OKOLICA:
W najbliższej okolicy znajduje się wszystko to co do codziennego funkcjonowania jest niezbędne:
- supermarket Kaufland (1 km), sklep dla majsterkowiczów Bricomarché (1,1 km)
- myjni samochodowa (1,2 km), warsztat samochodowy (1,3 km)
Ciąg komunikacyjny gwarantuje połączenia komunikacji publicznej z wszelakimi istotnymi punktami na mapie Konstantynowa Łódzkiego i Łodzi:
- przystanek tramwajowy i autobusowy: 43, N9 (1 km).
- Przedszkole dwujęzyczne w Łodzi (2,7 km), Przedszkole Miejskie nr 174 w Łodzi (3,5 km), Przedszkole Miejskie nr 236 w Łodzi (3,7 km)
- Szkoła Podstawowa nr 1 w Konstantynowie Łódzkim (1 km), Szkoła Podstawowa nr 6 w Łodzi (3,6 km), Szkoła Podstawowa nr 44 w Łodzi (4 km).
- Liceum Ogólnokształcące XXXIII w Łodzi (3,6 km)
Wypoczywać i aktywnie spędzać czasu umożliwia duży las, Centrum Sportu i Rekreacji Ośrodek Nad Stawem, pływalnia miejska.
Zapewniamy kompleksową obsługę finansową i prawną przy zakupie nieruchomości.
POMAGAMY W UZYSKANIU NAJLEPIEJ DOPASOWANEGO DO POTRZEB KREDYTU.
Bożena Wachowicz
tel. 511*488*139, 662*090*777
email: bozena.wachowicz@4alternatywy.com
Ogłoszenie to nie stanowi oferty w rozumieniu Kodeksu Cywilnego, a dane w nim zawarte mają jedynie charakter informacyjny i mogą ulec zmianie.
LOKALIZACJA:
Konstantynów Łódzki okolice ul. Spółdzielczej
> Dom położony tylko 4 km od Retkini (Łódź)
Oferujemy do sprzedaży komfortowy i przytulny dom w zabudowie bliźniaczej (1/2 domu)
> o powierzchni użytkowej 136,89 m2 wraz z garażem
> w stanie deweloperskim
>> z 4 sypialniami lub z 3 sypialniami i garderobą
> na działce o powierzchni 599,50 m2
> w cenie 849 000 zł.
Ta oferta tylko u Nas!
Bożena Wachowicz
tel. 511*488*139, 662*090*777
W ofercie sprzedażowej posiadamy cały dom
- PRZY ZAKUPIE DRUGIEJ CZĘŚCI DOMU DODATKOWY RABAT.
Dom jest w trakcie budowy.
Termin oddania do użytkowania II kwartał 2026r.
MEDIA: prąd, pompa ciepła Atlantic 6kW, studnia głębinowa, szambo.
POMIESZCZENIA:
Na parterze o powierzchni 77,12 m2 znajduje się:
- przestronny salon z jadalnią 30,47 m2, dzięki czemu strefa dzienna staje się centrum rodzinnego życia
- kuchnia: 6,63 m2
- pomieszczenie gospodarcze: 5,32 m2
- toaleta: 2,42 m2
- wiatrołap: 9,03 m2
- schody: 3,53 m2
- garaż: 19,72 m2
Na piętrze o powierzchni użytkowej 59,77 m2 znajduje się:
- sypialnia nr 1: 12,42 m2
- sypialnia nr 2: 11,28 m2
- sypialnia nr 3: 11,20 m2
- sypialnia nr 4: 8,86
- łazienka: 6,52 m2
- pomieszczenie gospodarcze: 2,45 m2
- przedpokój: 7,04 m2
>> bądź z 3 sypialniami i garderobą
Położenie budynku: od frontu znajduje się wejście do domu oraz wysunięty taras nad garażem, a od strony ogrodu zadaszony taras.
Dokładny rozkład pomieszczeń można zobaczyć na załączonych rzutach.
W galerii zdjęć przedstawiamy wizualizacje pomieszczeń.
INFORMACJE TECHNICZNE:
> 1. MATERIAŁY KONSTRUKCYJNE:
Więźba dachowa:
- drewno konstrukcyjne klasy C24, zabezpieczone środkiem FOBOS
- łączniki ciesielskie i wiatrownice systemowe np. firmy SIMPSON
- kotwy mechaniczne do drewna klasy. 8.8
Elementy żelbetowe:
- beton klasy C25/30 w elementach konstrukcyjnych
- beton klasy C8/10 jako beton podkładowy
- stal zbrojeniowa klasy A-IIIN
- otulina fundamentów - boczna 30 mm, dolna 50mm
- otulina elementów nadziemia 30mm
Elementy murowe:
- pustaki ceramiczne POROTHERM P+W gr. 25 cm dla ścian nośnych (fb=15,0 MPa) na zaprawie M10
- bloczki betonowe kl. 15 MPa dla ścian fundamentowych
> 2. ELEMENTY BUDOWLANE
- Instalacje: wyposażenie w instalację wodociągową z projektowanej studni głębinowej, kanalizacyjną do szamba, elektryczną z projekt. przyłącza, centralnego ogrzewania przy zastosowaniu pompy ciepła. Komin dymowy systemowy np. Schiedel Rondo Plus.
- Wentylacja: wentylacja mechaniczna. W garażu i pom. technicznym wentylacja grawitacyjna, otwór nawiewny w dolnej części ściany zewnętrznej garażu. Dopływ powietrzna pod posadzką dla kominka w salonie. Wentylacja do okapu w kuchni.
+ Fundamenty: ławy fundamentowe betonowe wykonane z betonu C25/30 W8 o przekrojach 40x60, głębokość posadowienia: minimum -1,32 m poniżej poziomu posadzki parteru. Poziom posadowienia ław fundamentowych przyjęto na rzędnej 172,08m n.p.m.
+ Ściany fundamentowe: o gr. 24 cm z bloczków betonowych klasy 15MPa na zaprawie cementowej klasy M10 lub z betonu towarowego C16/20. Na ławach, stopach i ścianach fundamentowych izolacja przeciwwilgociowa (dwie warstwy papy
asfaltowej na lepiku). Ściana fundamentowa na całym obwodzie ocieplona twardym styropianem gr. 10cm.
+ Ściany zewnętrzne: gr. 45 cm (25cm+20cm), dwuwarstwowe, wykonane z pustaków ceramicznych Porotherm P+W, ocieplone zostaną warstwą 20 cm styropianu + tynk mineralny.
+ Wysokość budynku: 9.08 m.
>> Tynki i okładziny: Zewnętrzne - tradycyjne cementowo- wapienne pomalowanie. Tynki wewnętrzne- sufitów- płyty kartonowo gipsowe gr. 1,25 mocowane do aluminiowego stelaża. Tynki ścian tradycyjne – cementowo wapienne III kat.
>> Posadzka: pokoje – panele drewniane, a hall, kuchnia i sanitariaty – płytki terakota. Posadzki na gruncie ocieplone styropianem gr. 15 cm. Ostateczny dobór materiałów wykończeniowych należy do decyzji inwestora.
- Nadproża okienne i drzwiowe: nadproża prefabrykowane typu L-19 lub żelbetowe monolityczne z betonu C25/30 wykonane zgodnie z rysunkami konstrukcyjnymi.
- Belki żelbetowe: żelbetowe monolityczne z betonu C25/30.
- Wieńce: wieńce żelbetowe z betonu C25/30, zbrojone prętami podłużnymi #12 i strzemionami ze stali A-IIIN. Wieńce o wymiarach: 25x25, 25x15.
-Trzpienie i słupy żelbetowe: monolityczne żelbetowe, z betonu klasy C25/30, zbrojone podłużnie i poprzecznie strzemionami stalą A-IIIN.
- Dach: drewno konstrukcyjne C24 więźba tradycyjna, dach dwuspadowy o nachyleniu 35st. z lukarnami płaskimi o spadku 2st., wiązar jętkowy oparty na 4 ścianach stolcowych. Ściany boczne lukarny wykonane jako drewniane.
- Obróbki bl: rynny i rury spustowe z blachy ocynkowanej grubości 0,55 mm, dostosowane kolorem do pokrycia dachu.
- Izolacje przeciwwilgociowe: izolacja pozioma to 2 x papa asfaltowa na lepiku ułożona na ławach i ścianach fundamentowych na wys. 5 cm nad terenem lub folia izolacyjna.
Izolacja pozioma nieprzerwana na całej długości i przy zastosowaniu ocieplenia ze styropianu. Izolacja pionowa to
dwukrotna warstwa Dysperbitu na bocznej powierzchni ław i ścian fundamentowych do wysokości izolacji poziomej.
OKOLICA:
W najbliższej okolicy znajduje się wszystko to co do codziennego funkcjonowania jest niezbędne:
- supermarket Kaufland (1 km), sklep dla majsterkowiczów Bricomarché (1,1 km)
- myjni samochodowa (1,2 km), warsztat samochodowy (1,3 km)
Ciąg komunikacyjny gwarantuje połączenia komunikacji publicznej z wszelakimi istotnymi punktami na mapie Konstantynowa Łódzkiego i Łodzi:
- przystanek tramwajowy i autobusowy: 43, N9 (1 km).
- Przedszkole dwujęzyczne w Łodzi (2,7 km), Przedszkole Miejskie nr 174 w Łodzi (3,5 km), Przedszkole Miejskie nr 236 w Łodzi (3,7 km)
- Szkoła Podstawowa nr 1 w Konstantynowie Łódzkim (1 km), Szkoła Podstawowa nr 6 w Łodzi (3,6 km), Szkoła Podstawowa nr 44 w Łodzi (4 km).
- Liceum Ogólnokształcące XXXIII w Łodzi (3,6 km)
Wypoczywać i aktywnie spędzać czasu umożliwia duży las, Centrum Sportu i Rekreacji Ośrodek Nad Stawem, pływalnia miejska.
Zapewniamy kompleksową obsługę finansową i prawną przy zakupie nieruchomości.
POMAGAMY W UZYSKANIU NAJLEPIEJ DOPASOWANEGO DO POTRZEB KREDYTU.
Bożena Wachowicz
tel. 511*488*139, 662*090*777
email: bozena.wachowicz@4alternatywy.com
Ogłoszenie to nie stanowi oferty w rozumieniu Kodeksu Cywilnego, a dane w nim zawarte mają jedynie charakter informacyjny i mogą ulec zmianie.
| Informacje podstawowe | ||
|---|---|---|
| Rodzaj nieruchomości | Dom | |
| Rodzaj transakcji | Sprzedaż | |
| Rynek | Pierwotny | |
| Województwo | łódzkie | |
| Miejscowość | Konstantynów Łódzki | |
| Prąd (przyłącze) | Tak | |
| Woda (przyłącze) | Tak | |
| Gaz (przyłącze) | Nie | |
| Kanalizacja | Tak | |
| Warunki zabudowy | Tak | |
| Parking | Tak | |
| Rodzaj budynku | Bliźniak | |
| Rok budowy | 2024 | |
| Informacje dodatkowe | ||
|---|---|---|
| Powierzchnia działki | 599 | |
| Położenie działki | Teren płaski | |
| Kształt działki | Prostokąt | |
| Liczba pięter | 1 | |
| Liczba pokoi | 5 | |
| Liczba sypialni | 4 | |
| Liczba łazieniek | 2 | |
| Stan obiektu | Deweloperski | |
| Rodzaj kuchni | Oddzielna | |
| Materiał | Pustak | |
| Technologia | Tradycyjna | |
| Zadaszenie (materiał) | Blachodachówka | |
| Ogrzewanie | Pompa ciepła | |
| Dostępność | Do uzgodnienia | |
| Balkon | Tak | |
| Loggia | Nie | |
| Taras | Tak | |
| Ogród | Tak | |
| Piwnica | Nie | |
| Poddasze | Tak | |
| Winda | Nie | |
| Otoczenie | ||
|---|---|---|
| Otoczenie | Wolnostojące domki jednorodzinne | |
| Głośność | Cicho | |
| Las | Tak | |
| Łąka | Nie | |
| Góry | Nie | |
| Jezioro | Nie | |
| Rzeka | Nie | |
| Morze | Nie | |
| Park | Tak | |
| Bank | Tak | |
| Restauracja | Tak | |
| Bar / pub | Tak | |
| Szkoła podstawowa | Tak | |
| Liceum / Technikum | Tak | |
| Uczelnia | Nie | |
| Żłobek | Tak | |
| Przedszkole | Tak | |
| Basen | Tak | |
| Fitnes | Tak | |
| Pralnia | Nie | |
| Apteka | Tak | |
| Fryzjer | Tak | |
| Supermarket | Tak | |
| Sklep spożywczy | Tak | |
| Weterynarz | Tak | |
Kontakt:
Bożena Wachowicz
Tel.: 511 488 139
Nr ref.: O-17735
Bożena Wachowicz
Tel.: 511 488 139
Nr ref.: O-17735
