Dom z 3 sypialniami, garażem- okolice Łodzi
Dom na sprzedaż, cena 795000 PLN, 5933 PLN/m2, powierzchnia 134 m2Konstantynów Łódzki, łódzkie, Polska














Jeśli szukasz domu z garażem i do własnej aranżacji,
gdzie dojazd do centrum Konstantynowa Łódzkiego i Łodzi jest szybki i sprawny
to ta ALTERNATYWA spełni Twoje oczekiwania.
Ta oferta tylko u Nas!
LOKALIZACJA:
Konstantynów Łódzki okolice ul. Polnej.
Bardzo bliskie okolice Łodzi
+ Dom położony tylko 6 km od Retkini (Łódź).
Przedstawiam do sprzedaży dom w zabudowie bliźniaczej (1/2 domu)
> o powierzchni użytkowej 133,80m2 wraz z garażem i piwnicą
> w stanie deweloperskim do własnej aranżacji
>> z 3 sypialniami lub z 2 sypialniami i garderobą
> w cenie 795 000 zł.
Nieruchomość (1/2 domu) usytuowana jest na działce
o powierzchni 452,50 m2.
Bożena Wachowicz
tel. 511*488*139, 662*090*777
W ofercie sprzedażowej posiadamy cały dom
- PRZY ZAKUPIE DRUGIEJ CZĘŚCI DOMU DODATKOWY RABAT.
Dom jest w trakcie budowy.
Termin oddania do użytkowania II kwartał 2026r.
MEDIA: prąd, pompa ciepła, studnia głębinowa, szambo.
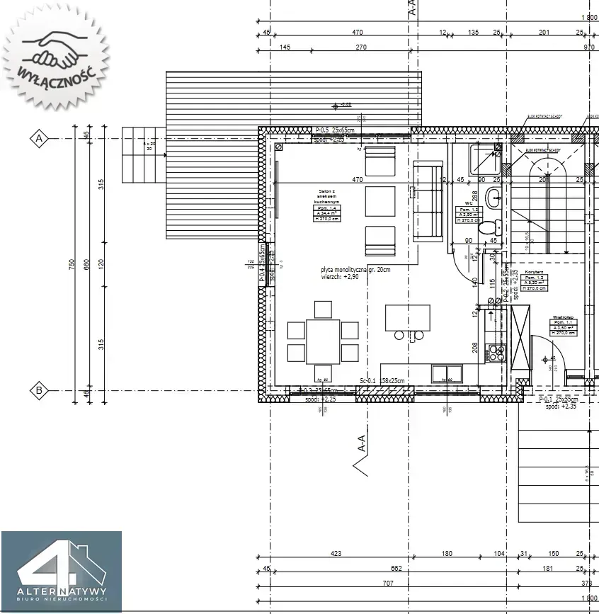
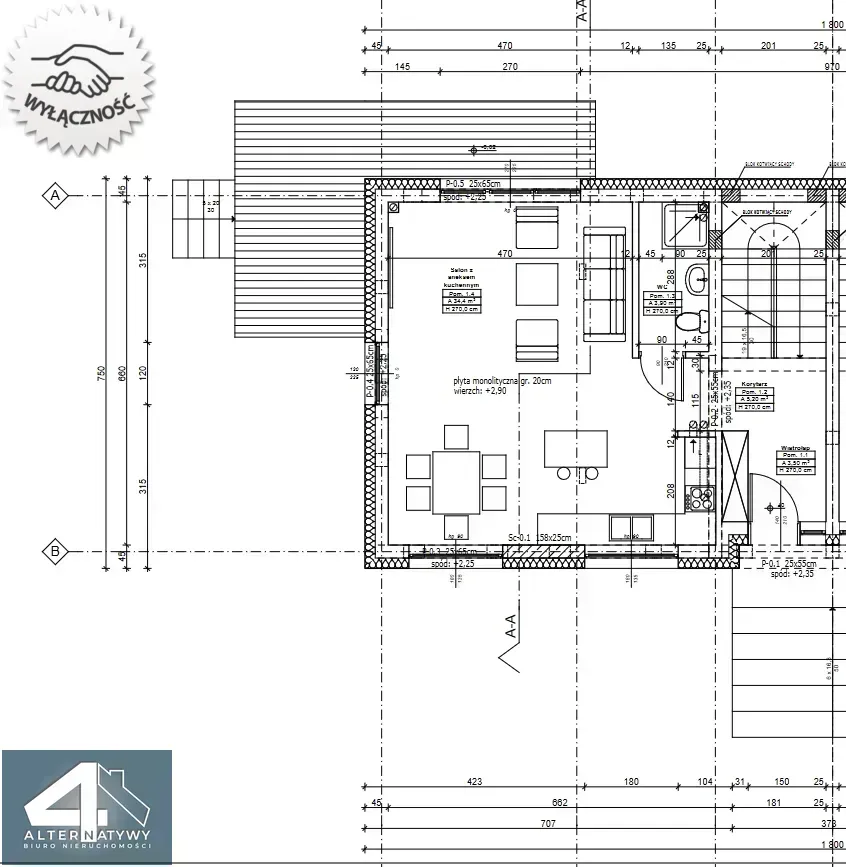
POMIESZCZENIA:
Na parterze o powierzchni użytkowe 47 m2 znajduje się:
- salon z aneksem kuchennym: 34,40 m2
- korytarz: 5,20 m2
- toaleta: 3,90 m2
- wiatrołap: 3,50 m2
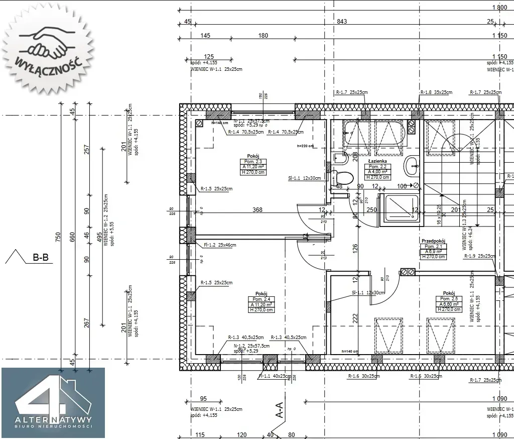
Na piętrze o powierzchni użytkowej 39,90 m2 znajduje się:
- sypialnia nr 1: 11,20 m2
- sypialnia nr 2: 11,20 m2
- sypialnia nr 3: 6,60 m2
- łazienka: 4 m2
- przedpokój: 6,90 m2
> lub 2 sypialnie tj:
>> sypialnia nr 1: 14,60 m2 + 3,1 m2 garderoba
>> sypialnia nr 2: 11,20 m2
>> łazienka: 4 m2
>> przedpokój: 6,90 m2
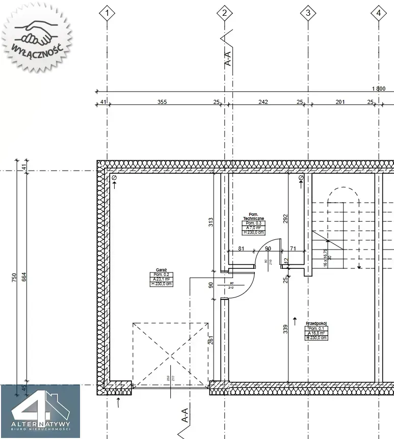
Piwnica o powierzchni 46,90 m2 zawiera pomieszczenia:
- garaż: 23,10 m2
- pomieszczenie techniczne: 7 m2
- przedpokój: 16,80 m2.
Dokładny rozkład pomieszczeń można zobaczyć na załączonych rzutach.
W galerii zdjęć przedstawiamy wizualizacje pomieszczeń.
INFORMACJE TECHNICZNE:
- Fundamenty: poziom posadowienia ław fundamentowych przyjęto na rzędnej 166,60 m n.p.m. Ściana fundamentowa ocieplona twardym styropianem gr.10cm, zaizolowana przeciwwilgociowo z wykonaniem izolacji twardej fundamentów.
- Ściany zewn: grubości 45 cm – od wewnątrz z pustaka ceramicznego cm, ocieplenie warstwą styropianu 20 cm, otynkowane.
- Ściany wewn: projektowane ściany działowe z bloczków ceramicznych grubości 12 cm.
- Stropy: żelbetowe gr 20cm.
- Wieńce: żelbetowe, zgodnie z częścią opisową konstrukcji.
- Dach: dwuspadowy o konstrukcji jętkowej o kącie nachylenia 45 stopni o konstrukcji drewnianej. Elementy więźby zabezpieczony środkami przeciw ogniowymi, grzybo i owadobójczymi. Pokrycie blachodachówką w kolorze grafitu.
- Stolarka: okienna i drzwiowa wykonywana na zamówienie wg wymiarów. Okna PCV , Współczynnik U< 0,9 W/m2K.
- Tynki: wewnętrzne cementowo wapienne. Zewnętrzne mineralne.
- Obróbki bl: rynny i rury spustowe z blachy ocynkowanej grubości 0,55 mm, dostosowane kolorem do pokrycia dachu.
- Instalacje: wyposażenie w instalację wodociągową, kanalizacyjną i elektryczna.
Dojazd drogą asfaltową i jedynie 300 m dojazdu drogą gruntową.
OKOLICA:
W najbliższej okolicy znajduje się wszystko to co do codziennego funkcjonowania jest niezbędne:
- sklep osiedlowy (300 m, 800 m ,820 m, 850 m,950 m)
- rynek "Targ miejski" (700 m)
- supermarket: Dino (200 m), Lidl (700 m), Kaufland (2,8 km), sklep dla majsterkowiczów Bricomarché (2,9 km)
- Przedszkole Miejskie nr 2 (700 m), Przedszkole Miejskie nr 1 (800 m), Przedszkole Niepubliczne (850 m, 950 m).
- Szkoła Podstawowa nr 5 w Konstantynowie Łódzkim (750 m), Zespół Szkół Specjalnych (950 m), Szkoła Podstawowa nr 1 w Konstantynowie Łódzkim (1,3 km), Szkoła Podstawowa nr 6 w Łodzi (6 km), Szkoła Podstawowa nr 44 w Łodzi (6,5 km).
- Liceum Ogólnokształcące XXXIII w Łodzi (6 km)
TERENY REKREACYJNE:
- las Porszewice, ścieżka przyrodnicza, park rowerowy, staw wędkarski, staw-kąpielisko, park linowy, Centrum Sportu i Rekreacji Ośrodek Nad Stawem, pływalnia miejska.
Zapewniamy kompleksową obsługę finansową i prawną przy zakupie nieruchomości.
POMAGAMY W UZYSKANIU NAJLEPIEJ DOPASOWANEGO DO POTRZEB KREDYTU.
Bożena Wachowicz
tel. 511*488*139, 662*090*777
email: bozena.wachowicz@4alternatywy.com
Ogłoszenie to nie stanowi oferty w rozumieniu Kodeksu Cywilnego, a dane w nim zawarte mają jedynie charakter informacyjny i mogą ulec zmianie.
gdzie dojazd do centrum Konstantynowa Łódzkiego i Łodzi jest szybki i sprawny
to ta ALTERNATYWA spełni Twoje oczekiwania.
Ta oferta tylko u Nas!
LOKALIZACJA:
Konstantynów Łódzki okolice ul. Polnej.
Bardzo bliskie okolice Łodzi
+ Dom położony tylko 6 km od Retkini (Łódź).
Przedstawiam do sprzedaży dom w zabudowie bliźniaczej (1/2 domu)
> o powierzchni użytkowej 133,80m2 wraz z garażem i piwnicą
> w stanie deweloperskim do własnej aranżacji
>> z 3 sypialniami lub z 2 sypialniami i garderobą
> w cenie 795 000 zł.
Nieruchomość (1/2 domu) usytuowana jest na działce
o powierzchni 452,50 m2.
Bożena Wachowicz
tel. 511*488*139, 662*090*777
W ofercie sprzedażowej posiadamy cały dom
- PRZY ZAKUPIE DRUGIEJ CZĘŚCI DOMU DODATKOWY RABAT.
Dom jest w trakcie budowy.
Termin oddania do użytkowania II kwartał 2026r.
MEDIA: prąd, pompa ciepła, studnia głębinowa, szambo.
POMIESZCZENIA:
Na parterze o powierzchni użytkowe 47 m2 znajduje się:
- salon z aneksem kuchennym: 34,40 m2
- korytarz: 5,20 m2
- toaleta: 3,90 m2
- wiatrołap: 3,50 m2
Na piętrze o powierzchni użytkowej 39,90 m2 znajduje się:
- sypialnia nr 1: 11,20 m2
- sypialnia nr 2: 11,20 m2
- sypialnia nr 3: 6,60 m2
- łazienka: 4 m2
- przedpokój: 6,90 m2
> lub 2 sypialnie tj:
>> sypialnia nr 1: 14,60 m2 + 3,1 m2 garderoba
>> sypialnia nr 2: 11,20 m2
>> łazienka: 4 m2
>> przedpokój: 6,90 m2
Piwnica o powierzchni 46,90 m2 zawiera pomieszczenia:
- garaż: 23,10 m2
- pomieszczenie techniczne: 7 m2
- przedpokój: 16,80 m2.
Dokładny rozkład pomieszczeń można zobaczyć na załączonych rzutach.
W galerii zdjęć przedstawiamy wizualizacje pomieszczeń.
INFORMACJE TECHNICZNE:
- Fundamenty: poziom posadowienia ław fundamentowych przyjęto na rzędnej 166,60 m n.p.m. Ściana fundamentowa ocieplona twardym styropianem gr.10cm, zaizolowana przeciwwilgociowo z wykonaniem izolacji twardej fundamentów.
- Ściany zewn: grubości 45 cm – od wewnątrz z pustaka ceramicznego cm, ocieplenie warstwą styropianu 20 cm, otynkowane.
- Ściany wewn: projektowane ściany działowe z bloczków ceramicznych grubości 12 cm.
- Stropy: żelbetowe gr 20cm.
- Wieńce: żelbetowe, zgodnie z częścią opisową konstrukcji.
- Dach: dwuspadowy o konstrukcji jętkowej o kącie nachylenia 45 stopni o konstrukcji drewnianej. Elementy więźby zabezpieczony środkami przeciw ogniowymi, grzybo i owadobójczymi. Pokrycie blachodachówką w kolorze grafitu.
- Stolarka: okienna i drzwiowa wykonywana na zamówienie wg wymiarów. Okna PCV , Współczynnik U< 0,9 W/m2K.
- Tynki: wewnętrzne cementowo wapienne. Zewnętrzne mineralne.
- Obróbki bl: rynny i rury spustowe z blachy ocynkowanej grubości 0,55 mm, dostosowane kolorem do pokrycia dachu.
- Instalacje: wyposażenie w instalację wodociągową, kanalizacyjną i elektryczna.
Dojazd drogą asfaltową i jedynie 300 m dojazdu drogą gruntową.
OKOLICA:
W najbliższej okolicy znajduje się wszystko to co do codziennego funkcjonowania jest niezbędne:
- sklep osiedlowy (300 m, 800 m ,820 m, 850 m,950 m)
- rynek "Targ miejski" (700 m)
- supermarket: Dino (200 m), Lidl (700 m), Kaufland (2,8 km), sklep dla majsterkowiczów Bricomarché (2,9 km)
- Przedszkole Miejskie nr 2 (700 m), Przedszkole Miejskie nr 1 (800 m), Przedszkole Niepubliczne (850 m, 950 m).
- Szkoła Podstawowa nr 5 w Konstantynowie Łódzkim (750 m), Zespół Szkół Specjalnych (950 m), Szkoła Podstawowa nr 1 w Konstantynowie Łódzkim (1,3 km), Szkoła Podstawowa nr 6 w Łodzi (6 km), Szkoła Podstawowa nr 44 w Łodzi (6,5 km).
- Liceum Ogólnokształcące XXXIII w Łodzi (6 km)
TERENY REKREACYJNE:
- las Porszewice, ścieżka przyrodnicza, park rowerowy, staw wędkarski, staw-kąpielisko, park linowy, Centrum Sportu i Rekreacji Ośrodek Nad Stawem, pływalnia miejska.
Zapewniamy kompleksową obsługę finansową i prawną przy zakupie nieruchomości.
POMAGAMY W UZYSKANIU NAJLEPIEJ DOPASOWANEGO DO POTRZEB KREDYTU.
Bożena Wachowicz
tel. 511*488*139, 662*090*777
email: bozena.wachowicz@4alternatywy.com
Ogłoszenie to nie stanowi oferty w rozumieniu Kodeksu Cywilnego, a dane w nim zawarte mają jedynie charakter informacyjny i mogą ulec zmianie.
| Informacje podstawowe | ||
|---|---|---|
| Rodzaj nieruchomości | Dom | |
| Rodzaj transakcji | Sprzedaż | |
| Rynek | Pierwotny | |
| Województwo | łódzkie | |
| Miejscowość | Konstantynów Łódzki | |
| Prąd (przyłącze) | Tak | |
| Woda (przyłącze) | Tak | |
| Gaz (przyłącze) | Nie | |
| Kanalizacja | Tak | |
| Warunki zabudowy | Tak | |
| Parking | Tak | |
| Rodzaj budynku | Bliźniak | |
| Rok budowy | 2024 | |
| Informacje dodatkowe | ||
|---|---|---|
| Powierzchnia działki | 452 | |
| Położenie działki | Teren płaski | |
| Kształt działki | Prostokąt | |
| Liczba pięter | 1 | |
| Liczba pokoi | 4 | |
| Liczba sypialni | 3 | |
| Liczba łazieniek | 2 | |
| Stan obiektu | Deweloperski | |
| Rodzaj kuchni | Aneks | |
| Materiał | Pustak | |
| Technologia | Tradycyjna | |
| Zadaszenie (materiał) | Blachodachówka | |
| Ogrzewanie | Pompa ciepła | |
| Dostępność | Do uzgodnienia | |
| Balkon | Nie | |
| Loggia | Nie | |
| Taras | Tak | |
| Ogród | Tak | |
| Piwnica | Tak | |
| Poddasze | Tak | |
| Winda | Nie | |
| Otoczenie | ||
|---|---|---|
| Otoczenie | Wolnostojące domki jednorodzinne | |
| Głośność | Cicho | |
| Las | Tak | |
| Łąka | Nie | |
| Góry | Nie | |
| Jezioro | Nie | |
| Rzeka | Nie | |
| Morze | Nie | |
| Park | Tak | |
| Bank | Tak | |
| Restauracja | Tak | |
| Bar / pub | Tak | |
| Szkoła podstawowa | Tak | |
| Liceum / Technikum | Tak | |
| Uczelnia | Nie | |
| Żłobek | Tak | |
| Przedszkole | Tak | |
| Basen | Tak | |
| Fitnes | Tak | |
| Pralnia | Nie | |
| Apteka | Tak | |
| Fryzjer | Tak | |
| Supermarket | Tak | |
| Sklep spożywczy | Tak | |
| Weterynarz | Tak | |
Kontakt:
Bożena Wachowicz
Tel.: 511 488 139
Nr ref.: O-17910
Bożena Wachowicz
Tel.: 511 488 139
Nr ref.: O-17910
