Bliźniak cicha okolica blisko Krakowa!!
Dom na sprzedaż, cena 799000 PLN, 6008 PLN/m2, powierzchnia 133 m2Krzyszkowice, małopolskie, Polska

















Więcej informacji MICHAŁ 604 196 759
Ostatnie domy!!
Budynki po odbiorach - oddane do użytkowania!
Jeśli szukasz domu w super lokalizacji w cichej okolicy niedaleko od Krakowa, to ta ALTERNATYWA jest dla Ciebie :).
Oferujemy do sprzedaży dom- bliźniak w stanie deweloperskim o powierzchni użytkowej 125 m2 i na kilkuarowej działce w cenie 799 000 zł.
Budynek w nowoczesnej formie został wzniesiony wg indywidualnego projektu w technologii tradycyjnej.
Budynek charakteryzuje się znakomitymi parametrami izolacyjności cieplnej. Z zewnątrz jest całkowicie wykończony - otocznie jest zagospodarowane a podjazd wyłożony kostką a droga wewnętrzna będzie wyasfaltowana.
Dom znajduje się w sąsiedztwie 2 takich samych budynków tworzących rodzaj mini osiedla. Kolejny etap inwestycji jest w tej chwili w realizacji.
Bardzo dużym atutem jest lokalizacja pod lasem przy bocznej uliczce w spokojnej okolicy a zarazem niedaleko od wszystkich udogodnień życia codziennego jak sklepy, szkoła, przychodnia i przystanki komunikacji zbiorowej.
Dla budynku przewidziano oprócz garażu 2 zewnętrzne miejsca parkingowe!
W sąsiedztwie nie przebiega żaden z wariantów planowanej drogi S7.
Rynek pierwotny - BEZ PCC!!
LOKALIZACJA:
Nieruchomość znajduje się w jednej z miejscowości w północnej części gminy Myślenice. Odległość od Myślenic to około 10 minut a od Krakowa około 20 minut
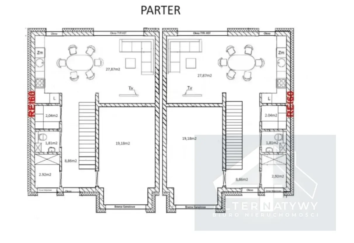
POMIESZCZENIA:
Parter:
- wiatrołap z miejscem na wbudowaną szafę
- salon z jadalnią i wyjściem do ogrodu
- aneks kuchenny
- wc
- kotłownia, pralnia, pom. gospodarcze
- garaż
Piętro:
- 4 pokoje, sypialnie
- duża łazienka z wanna i prysznicem
Powierzchnie:
powierzchnia użytkowa: 125 m²
powierzchnia całkowita: 133 m²
Dokładny rozkład pomieszczeń oraz ich metraże można zobaczyć na załączonych rzutach i wizualizacjach.
PODSTAWOWE INFORMACJE:
- rok budowy 2025
- technologia tradycyjna
- budynek w stanie deweloperskim, całkowicie wykończony z zewnątrz
- zainstalowany kocioł gazowy z zasobnikiem ciepłej wody
- ogrzewanie podłogowe w całym domu
- przewidziana możliwość montażu fotowoltaiki
- przewidziana możliwość montażu klimatyzacji
- dach kryty blachą
- okna PCV 3 szybowe
- media: prąd, woda, gaz oraz kanalizacja doprowadzone do budynku
- działka 3 ary
- garaż 1 stanowiskowy
- teren wokół budynku zagospodarowany, uporządkowany, wyłożony kostką i posiana trawa
- ogrodzenie
- teren zamykany z bramą na pilota
OKOLICA:
Nieruchomość położona jest w bliskim sąsiedztwie wszelkich udogodnień życia codziennego (szkoła, sklepy, dyskonty spożywcze, restauracja, przystanki komunikacji zbiorowej) w spokojnej okolicy wśród terenów zielonych.
Kilka DK w okolicy daje możliwość szybkiego dojazdu do Krakowa i Myślenic.
Zapewniam kompleksową obsługę finansową i prawną przy zakupie nieruchomości.
POMAGAMY W UZYSKANIU NAJLEPIEJ DOPASOWANEGO DO POTRZEB KREDYTU.
Ogłoszenie to nie stanowi oferty w rozumieniu Kodeksu Cywilnego, a dane w nim zawarte mają jedynie charakter informacyjny i mogą ulec zmianie.
Ostatnie domy!!
Budynki po odbiorach - oddane do użytkowania!
Jeśli szukasz domu w super lokalizacji w cichej okolicy niedaleko od Krakowa, to ta ALTERNATYWA jest dla Ciebie :).
Oferujemy do sprzedaży dom- bliźniak w stanie deweloperskim o powierzchni użytkowej 125 m2 i na kilkuarowej działce w cenie 799 000 zł.
Budynek w nowoczesnej formie został wzniesiony wg indywidualnego projektu w technologii tradycyjnej.
Budynek charakteryzuje się znakomitymi parametrami izolacyjności cieplnej. Z zewnątrz jest całkowicie wykończony - otocznie jest zagospodarowane a podjazd wyłożony kostką a droga wewnętrzna będzie wyasfaltowana.
Dom znajduje się w sąsiedztwie 2 takich samych budynków tworzących rodzaj mini osiedla. Kolejny etap inwestycji jest w tej chwili w realizacji.
Bardzo dużym atutem jest lokalizacja pod lasem przy bocznej uliczce w spokojnej okolicy a zarazem niedaleko od wszystkich udogodnień życia codziennego jak sklepy, szkoła, przychodnia i przystanki komunikacji zbiorowej.
Dla budynku przewidziano oprócz garażu 2 zewnętrzne miejsca parkingowe!
W sąsiedztwie nie przebiega żaden z wariantów planowanej drogi S7.
Rynek pierwotny - BEZ PCC!!
LOKALIZACJA:
Nieruchomość znajduje się w jednej z miejscowości w północnej części gminy Myślenice. Odległość od Myślenic to około 10 minut a od Krakowa około 20 minut
POMIESZCZENIA:
Parter:
- wiatrołap z miejscem na wbudowaną szafę
- salon z jadalnią i wyjściem do ogrodu
- aneks kuchenny
- wc
- kotłownia, pralnia, pom. gospodarcze
- garaż
Piętro:
- 4 pokoje, sypialnie
- duża łazienka z wanna i prysznicem
Powierzchnie:
powierzchnia użytkowa: 125 m²
powierzchnia całkowita: 133 m²
Dokładny rozkład pomieszczeń oraz ich metraże można zobaczyć na załączonych rzutach i wizualizacjach.
PODSTAWOWE INFORMACJE:
- rok budowy 2025
- technologia tradycyjna
- budynek w stanie deweloperskim, całkowicie wykończony z zewnątrz
- zainstalowany kocioł gazowy z zasobnikiem ciepłej wody
- ogrzewanie podłogowe w całym domu
- przewidziana możliwość montażu fotowoltaiki
- przewidziana możliwość montażu klimatyzacji
- dach kryty blachą
- okna PCV 3 szybowe
- media: prąd, woda, gaz oraz kanalizacja doprowadzone do budynku
- działka 3 ary
- garaż 1 stanowiskowy
- teren wokół budynku zagospodarowany, uporządkowany, wyłożony kostką i posiana trawa
- ogrodzenie
- teren zamykany z bramą na pilota
OKOLICA:
Nieruchomość położona jest w bliskim sąsiedztwie wszelkich udogodnień życia codziennego (szkoła, sklepy, dyskonty spożywcze, restauracja, przystanki komunikacji zbiorowej) w spokojnej okolicy wśród terenów zielonych.
Kilka DK w okolicy daje możliwość szybkiego dojazdu do Krakowa i Myślenic.
Zapewniam kompleksową obsługę finansową i prawną przy zakupie nieruchomości.
POMAGAMY W UZYSKANIU NAJLEPIEJ DOPASOWANEGO DO POTRZEB KREDYTU.
Ogłoszenie to nie stanowi oferty w rozumieniu Kodeksu Cywilnego, a dane w nim zawarte mają jedynie charakter informacyjny i mogą ulec zmianie.
| Informacje podstawowe | ||
|---|---|---|
| Rodzaj nieruchomości | Dom | |
| Rodzaj transakcji | Sprzedaż | |
| Rynek | Pierwotny | |
| Województwo | małopolskie | |
| Miejscowość | Krzyszkowice | |
| Prąd (przyłącze) | Tak | |
| Woda (przyłącze) | Tak | |
| Gaz (przyłącze) | Tak | |
| Kanalizacja | Tak | |
| Warunki zabudowy | Tak | |
| Parking | Tak | |
| Rodzaj budynku | Bliźniak | |
| Rok budowy | 2025 | |
| Informacje dodatkowe | ||
|---|---|---|
| Powierzchnia działki | 300 | |
| Położenie działki | Teren płaski | |
| Kształt działki | Prostokąt | |
| Liczba pięter | 1 | |
| Liczba pokoi | 5 | |
| Liczba sypialni | 4 | |
| Liczba łazieniek | 2 | |
| Stan obiektu | Deweloperski | |
| Rodzaj kuchni | Aneks | |
| Materiał | Pustak | |
| Technologia | Tradycyjna | |
| Zadaszenie (materiał) | Blacha | |
| Ogrzewanie | Gazowe | |
| Dostępność | Natychmiast | |
| Taras | Tak | |
| Ogród | Tak | |
| Piwnica | Nie | |
| Poddasze | Tak | |
| Otoczenie | ||
|---|---|---|
| Otoczenie | Wolnostojące domki jednorodzinne | |
| Głośność | Cicho | |
| Las | Tak | |
| Łąka | Tak | |
| Góry | Tak | |
| Rzeka | Tak | |
| Restauracja | Tak | |
| Bar / pub | Tak | |
| Szkoła podstawowa | Tak | |
| Przedszkole | Tak | |
| Apteka | Tak | |
| Fryzjer | Tak | |
| Supermarket | Tak | |
| Sklep spożywczy | Tak | |
| Weterynarz | Tak | |
Kontakt:
Michał Węgrzyn
Tel.: 604 196 759
Nr ref.: O-17936
Michał Węgrzyn
Tel.: 604 196 759
Nr ref.: O-17936
