Atrakcyjna cena - budynek usługowy: Łódź
Lokal użytkowy na sprzedaż, cena 1450000 PLN, 2231 PLN/m2, powierzchnia 650 m2Łódź, łódzkie, Polska











OFERTA INWESTYCYJNA
- budynek usługowy
- doskonała lokalizacja i infrastruktura
Ta oferta tylko u nas!!!
ATRAKCYJNA CENA!
LOKALIZACJA:
Łódź – Polesie (Lublinek - Pienista) okolice ul. Obywatelskiej i Pienistej
Bożena Wachowicz
tel. 662*090*777, 511*488*139
STAN OBECNY:
- powierzchnia działki: 471 m2
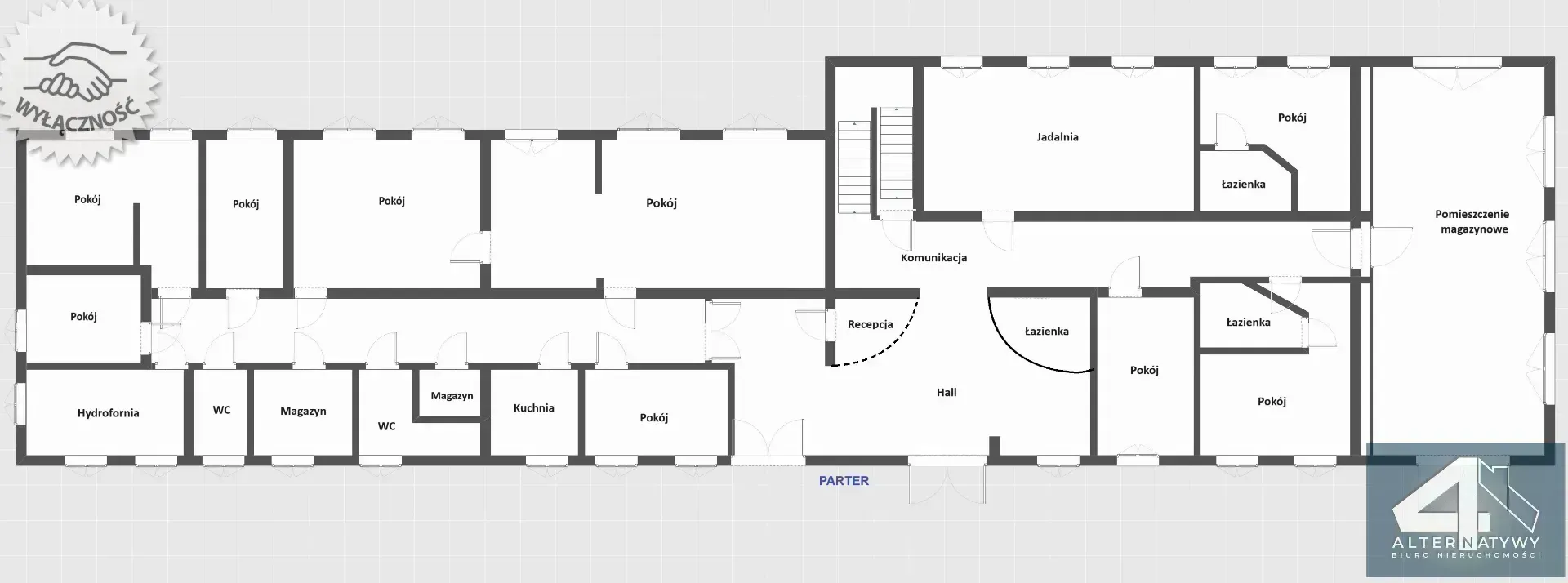
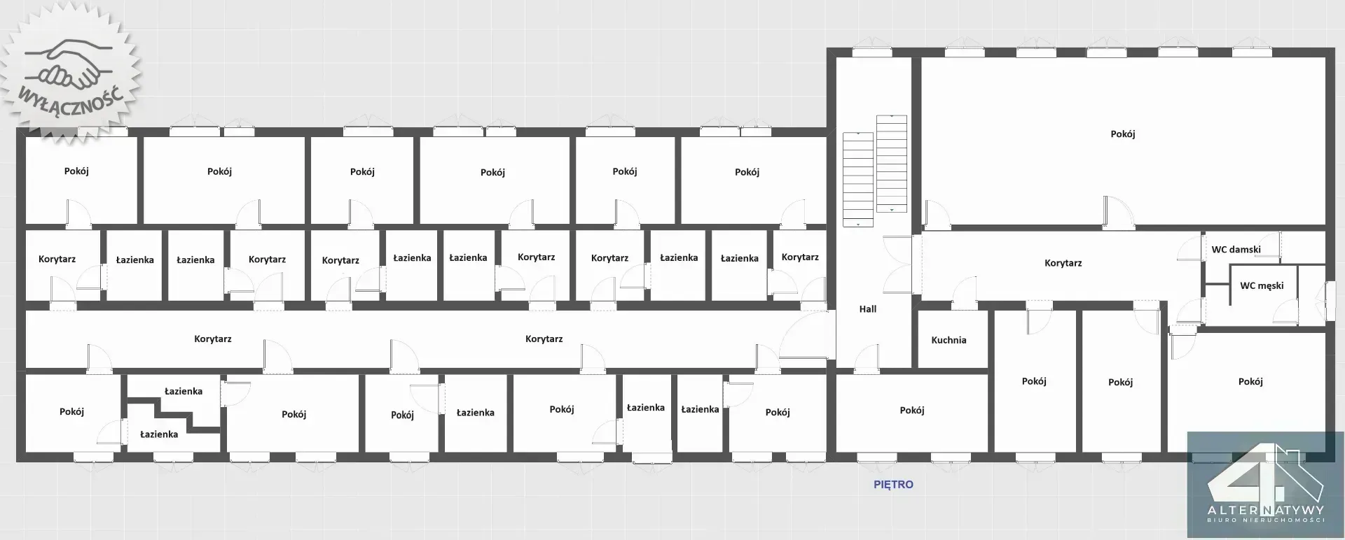
- powierzchnia użytkowa budynku: 650 m2
> parter: 315,40 m2
> piętro: 334,80 m2
- łącznie 30 pokoi/pomieszczeń w budynku
- łącznie 18 łazienek/toalet w budynku
- kubatura: 3110 m3
- pomieszczenie magazynowe: 53,51 m2
(możliwość zburzenia celem zagospodarowania na miejsca parkingowe)
- rok budowy: 1970 r.
- wymiana instalacji elektrycznej i hydraulicznej w 2010 r.
- wszystkie media miejskie
- budynek zagospodarowany i użytkowany
- możliwość wynajmu miejsc parkingowych
CENA OFERTOWA: 1 450 000 ZŁ
Brak miejscowego planu zagospodarowania przestrzennego
OKOLICA:
Nieruchomość usytuowana w bezpośrednim sąsiedztwie budynków usługowo-handlowych, supermarketów, przystanków autobusowych.
Ciąg komunikacyjny gwarantuje łatwy dojazd zarówno samochodem oraz poprzez połączenia komunikacji publicznej z wszelakimi istotnymi punktami na mapie Łodzi.
ZAPRASZAMY DO KONTAKTU.
Bożena Wachowicz
tel. 662*090*777, 511*488*139
e-mail: bozena.wachowicz@4alternatywy.com
Zapewniamy kompleksową obsługę finansową i prawną przy zakupie nieruchomości.
POMAGAMY W UZYSKANIU NAJLEPIEJ DOPASOWANEGO DO POTRZEB KREDYTU.
Ogłoszenie to nie stanowi oferty w rozumieniu Kodeksu Cywilnego, a dane w nim zawarte mają jedynie charakter informacyjny i mogą ulec zmianie.
- budynek usługowy
- doskonała lokalizacja i infrastruktura
Ta oferta tylko u nas!!!
ATRAKCYJNA CENA!
LOKALIZACJA:
Łódź – Polesie (Lublinek - Pienista) okolice ul. Obywatelskiej i Pienistej
Bożena Wachowicz
tel. 662*090*777, 511*488*139
STAN OBECNY:
- powierzchnia działki: 471 m2
- powierzchnia użytkowa budynku: 650 m2
> parter: 315,40 m2
> piętro: 334,80 m2
- łącznie 30 pokoi/pomieszczeń w budynku
- łącznie 18 łazienek/toalet w budynku
- kubatura: 3110 m3
- pomieszczenie magazynowe: 53,51 m2
(możliwość zburzenia celem zagospodarowania na miejsca parkingowe)
- rok budowy: 1970 r.
- wymiana instalacji elektrycznej i hydraulicznej w 2010 r.
- wszystkie media miejskie
- budynek zagospodarowany i użytkowany
- możliwość wynajmu miejsc parkingowych
CENA OFERTOWA: 1 450 000 ZŁ
Brak miejscowego planu zagospodarowania przestrzennego
OKOLICA:
Nieruchomość usytuowana w bezpośrednim sąsiedztwie budynków usługowo-handlowych, supermarketów, przystanków autobusowych.
Ciąg komunikacyjny gwarantuje łatwy dojazd zarówno samochodem oraz poprzez połączenia komunikacji publicznej z wszelakimi istotnymi punktami na mapie Łodzi.
ZAPRASZAMY DO KONTAKTU.
Bożena Wachowicz
tel. 662*090*777, 511*488*139
e-mail: bozena.wachowicz@4alternatywy.com
Zapewniamy kompleksową obsługę finansową i prawną przy zakupie nieruchomości.
POMAGAMY W UZYSKANIU NAJLEPIEJ DOPASOWANEGO DO POTRZEB KREDYTU.
Ogłoszenie to nie stanowi oferty w rozumieniu Kodeksu Cywilnego, a dane w nim zawarte mają jedynie charakter informacyjny i mogą ulec zmianie.
| Informacje podstawowe | ||
|---|---|---|
| Rodzaj nieruchomości | Lokal użytkowy | |
| Rodzaj transakcji | Sprzedaż | |
| Rynek | Wtórny | |
| Województwo | łódzkie | |
| Miejscowość | Łódź | |
| Prąd (przyłącze) | Tak | |
| Woda (przyłącze) | Tak | |
| Gaz (przyłącze) | Tak | |
| Kanalizacja | Tak | |
| Warunki zabudowy | Tak | |
| Parking | Tak | |
| Rodzaj budynku | Wolnostojący | |
| Rok budowy | 1970 | |
| Informacje dodatkowe | ||
|---|---|---|
| Przeznaczenie komercyjne | Lokal handlowy/usługowy | |
| Piętro | 1 | |
| Liczba pięter | 1 | |
| Liczba łazieniek | 18 | |
| Stan obiektu | Wykończony | |
| Materiał | Cegła | |
| Ogrzewanie | Centralne ogrzewanie | |
| Dostępność | Do uzgodnienia | |
| Winda | Nie | |
| Otoczenie | ||
|---|---|---|
| Otoczenie | Obiekty handlowo-usługowe | |
| Las | Nie | |
| Łąka | Nie | |
| Góry | Nie | |
| Jezioro | Nie | |
| Rzeka | Nie | |
| Morze | Nie | |
| Park | Tak | |
| Bank | Tak | |
| Restauracja | Tak | |
| Bar / pub | Tak | |
| Szkoła podstawowa | Tak | |
| Liceum / Technikum | Tak | |
| Uczelnia | Tak | |
| Żłobek | Tak | |
| Przedszkole | Tak | |
| Basen | Tak | |
| Fitnes | Tak | |
| Pralnia | Tak | |
| Apteka | Tak | |
| Fryzjer | Tak | |
| Supermarket | Tak | |
| Sklep spożywczy | Tak | |
| Weterynarz | Tak | |
Kontakt:
Bożena Wachowicz
Tel.: 511 488 139
Nr ref.: O-16324
Bożena Wachowicz
Tel.: 511 488 139
Nr ref.: O-16324
