6 pokoi+kuchnia+balkony, Krakowska, 126m
Mieszkanie na sprzedaż, cena 700000 PLN, 5556 PLN/m2, powierzchnia 126 m2Trzebinia, małopolskie, Polska
























Jeśli szukasz jasnego, nowoczesnego mieszkania 2-poziomowego, w stanie deweloperskim, z możliwością rozdzielenia na dwa osobne lokale – bez prowizji dla kupującego,
to ta Alternatywa jest właśnie dla Ciebie!
Czeka na Ciebie położone w zielonej okolicy Trzebinii, blisko ul. Krakowskiej ergonomicznie rozplanowane, 2 piętrowe mieszkanie (z możliwością odcięcia pięter i rozdzielenia na dwa apartamenty) w dwupiętrowym bloku mieszkalnym.
W mieszkaniu jest łącznie 6 pokoi (każdy z wyjściem na duży balkon), dwie łazienki (z możliwością stworzenia trzeciej) i otwarta na salon kuchnia, którą można oddzielić od salonu.
Do mieszkania przynależą dwa miejsca parkingowe, wliczone w cenę!
- budynek jest ocieplony, otynkowany i pomalowany,
- na drodze dojazdowej i przy budynku kostka brukowa,
- wnętrze mieszkania w stanie deweloperskim,
- rozprowadzono instalacje i przyłącza wod-kan. oraz elektryczne,
- zainstalowano ogrzewanie gazowe,
- okna PCV,
- ogrodzenie i domofon.
W pobliżu Puszcza Dulowska, kąpielisko Balaton i fitnes club Graviton.
POMIESZCZENIA:
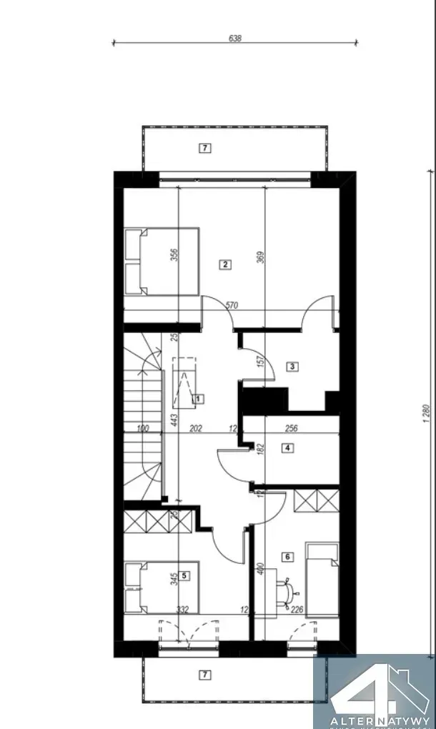
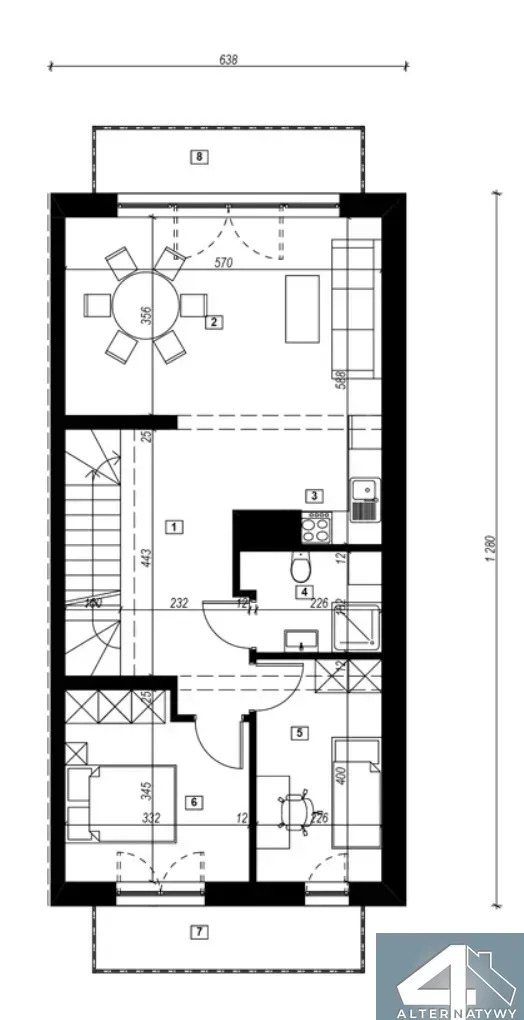
1) PIĘTRO:
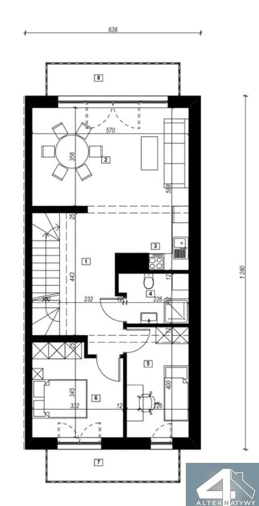
- Salon z kuchnią w aneksie (można oddzielić) – z wyjściem na duży balkon.
- 2 x sypialnie z wyjściem na duży balkon,
- łazienka z miejscem na wannę,
- przedpokój.
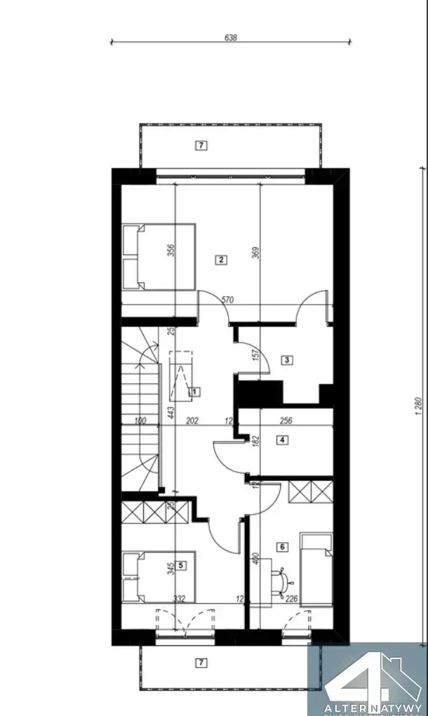
2) PIĘTRO:
- 3 x pokoje: duża, średnia i mała sypialnia, każda z wyjściem na duży balkon,
- łazienka z miejscem na prysznic lub wannę;
- garderoba (ewentualnie można zaaranżować jako dodatkową łazienkę/toaletę).
(Zamieszczone w ogłoszeniu zdjęcia wizualizacji stanowią jedynie propozycję wykończenia wnętrz przez nabywcę).
LOKALIZACJA: Trzebinia, ok. ul. Krakowskiej, szybki dojazd A4 do Krakowa i Katowic.
Przystanek autobusowy A42, 41 i lokalne busy,
Blisko Stacja PKP - liczne pociągi – dojazd do Krakowa w 35 min!
- Sklepy: Biedronka (2 min spacerem), Lewiatan, Dino,
- Blisko na Rynek oraz do restauracji: Fanaberia, Focacceria, Pierożek, Wabi Sushi, Puchatek, Stary Młyn,
- Edukacja: w pobliżu przedszkole, szkoła podstawowa i średnia.
- Rekreacja: Fitnes Club Graviton, Kąpielisko Balaton oraz puszcza Dulowska a w niej wiele ścieżek spacerowych i rowerowych.
Kupując to mieszkanie, ZYSKUJESZ:
- czas – możesz rozpocząć wykańczanie wnętrz i urządzić się stosownie do własnych potrzeb,
- elastyczność aranżacji – możesz rozdzielić mieszkanie na dwa osobne lokale!
- świetną lokalizację – zielona, rekreacyjna okolica z jednoczesnym szybkim dojazdem do Krakowa,
- sąsiedztwo w podobnym wieku,
- gwarantowane 2 miejsca postojowe przy budynku,
- ekonomiczną formę ogrzewania gazem,
- transport publiczny do Krakowa i okolic.
>>> BEZ PROWIZJI dla kupującego!
Zadzwoń BEZPOŚREDNIO >> Magdalena Adamczyk +48*786*288*784
DODATKOWO pomogę Ci:
- z obsługą prawną i finansową przy zakupie nieruchomości
- uzyskać wygodny w spłacie kredyt na mieszkanie.
KONTAKT bezpośredni:
Magdalena Adamczyk
4 ALTERNATYWY
Mail: magdalena.adamczyk@4alternatywy.com
Tel: +48*786*288*784
Ogłoszenie to nie stanowi oferty w rozumieniu Kodeksu Cywilnego, a dane w nim zawarte mają jedynie charakter informacyjny i mogą ulec zmianie.
to ta Alternatywa jest właśnie dla Ciebie!
Czeka na Ciebie położone w zielonej okolicy Trzebinii, blisko ul. Krakowskiej ergonomicznie rozplanowane, 2 piętrowe mieszkanie (z możliwością odcięcia pięter i rozdzielenia na dwa apartamenty) w dwupiętrowym bloku mieszkalnym.
W mieszkaniu jest łącznie 6 pokoi (każdy z wyjściem na duży balkon), dwie łazienki (z możliwością stworzenia trzeciej) i otwarta na salon kuchnia, którą można oddzielić od salonu.
Do mieszkania przynależą dwa miejsca parkingowe, wliczone w cenę!
- budynek jest ocieplony, otynkowany i pomalowany,
- na drodze dojazdowej i przy budynku kostka brukowa,
- wnętrze mieszkania w stanie deweloperskim,
- rozprowadzono instalacje i przyłącza wod-kan. oraz elektryczne,
- zainstalowano ogrzewanie gazowe,
- okna PCV,
- ogrodzenie i domofon.
W pobliżu Puszcza Dulowska, kąpielisko Balaton i fitnes club Graviton.
POMIESZCZENIA:
1) PIĘTRO:
- Salon z kuchnią w aneksie (można oddzielić) – z wyjściem na duży balkon.
- 2 x sypialnie z wyjściem na duży balkon,
- łazienka z miejscem na wannę,
- przedpokój.
2) PIĘTRO:
- 3 x pokoje: duża, średnia i mała sypialnia, każda z wyjściem na duży balkon,
- łazienka z miejscem na prysznic lub wannę;
- garderoba (ewentualnie można zaaranżować jako dodatkową łazienkę/toaletę).
(Zamieszczone w ogłoszeniu zdjęcia wizualizacji stanowią jedynie propozycję wykończenia wnętrz przez nabywcę).
LOKALIZACJA: Trzebinia, ok. ul. Krakowskiej, szybki dojazd A4 do Krakowa i Katowic.
Przystanek autobusowy A42, 41 i lokalne busy,
Blisko Stacja PKP - liczne pociągi – dojazd do Krakowa w 35 min!
- Sklepy: Biedronka (2 min spacerem), Lewiatan, Dino,
- Blisko na Rynek oraz do restauracji: Fanaberia, Focacceria, Pierożek, Wabi Sushi, Puchatek, Stary Młyn,
- Edukacja: w pobliżu przedszkole, szkoła podstawowa i średnia.
- Rekreacja: Fitnes Club Graviton, Kąpielisko Balaton oraz puszcza Dulowska a w niej wiele ścieżek spacerowych i rowerowych.
Kupując to mieszkanie, ZYSKUJESZ:
- czas – możesz rozpocząć wykańczanie wnętrz i urządzić się stosownie do własnych potrzeb,
- elastyczność aranżacji – możesz rozdzielić mieszkanie na dwa osobne lokale!
- świetną lokalizację – zielona, rekreacyjna okolica z jednoczesnym szybkim dojazdem do Krakowa,
- sąsiedztwo w podobnym wieku,
- gwarantowane 2 miejsca postojowe przy budynku,
- ekonomiczną formę ogrzewania gazem,
- transport publiczny do Krakowa i okolic.
>>> BEZ PROWIZJI dla kupującego!
Zadzwoń BEZPOŚREDNIO >> Magdalena Adamczyk +48*786*288*784
DODATKOWO pomogę Ci:
- z obsługą prawną i finansową przy zakupie nieruchomości
- uzyskać wygodny w spłacie kredyt na mieszkanie.
KONTAKT bezpośredni:
Magdalena Adamczyk
4 ALTERNATYWY
Mail: magdalena.adamczyk@4alternatywy.com
Tel: +48*786*288*784
Ogłoszenie to nie stanowi oferty w rozumieniu Kodeksu Cywilnego, a dane w nim zawarte mają jedynie charakter informacyjny i mogą ulec zmianie.
| Informacje podstawowe | ||
|---|---|---|
| Rodzaj nieruchomości | Mieszkanie | |
| Rodzaj transakcji | Sprzedaż | |
| Rynek | Pierwotny | |
| Województwo | małopolskie | |
| Miejscowość | Trzebinia | |
| Prąd (przyłącze) | Tak | |
| Woda (przyłącze) | Tak | |
| Gaz (przyłącze) | Tak | |
| Kanalizacja | Tak | |
| Warunki zabudowy | Tak | |
| Parking | Tak | |
| Rodzaj budynku | Blok mieszkalny | |
| Rok budowy | 2025 | |
| Informacje dodatkowe | ||
|---|---|---|
| Piętro | 1 | |
| Liczba pięter | 2 | |
| Liczba pokoi | 6 | |
| Liczba sypialni | 5 | |
| Liczba łazieniek | 2 | |
| Stan obiektu | Deweloperski | |
| Rodzaj kuchni | Aneks | |
| Materiał | Pustak | |
| Technologia | Tradycyjna | |
| Ogrzewanie | Gazowe | |
| Dostępność | Natychmiast | |
| Balkon | Tak | |
| Loggia | Nie | |
| Taras | Nie | |
| Ogród | Nie | |
| Piwnica | Nie | |
| Poddasze | Nie | |
| Winda | Nie | |
| Otoczenie | ||
|---|---|---|
| Otoczenie | Osiedle domów jednorodzinnych | |
| Głośność | Cicho | |
| Las | Tak | |
| Łąka | Tak | |
| Góry | Nie | |
| Jezioro | Tak | |
| Rzeka | Tak | |
| Morze | Nie | |
| Park | Nie | |
| Bank | Tak | |
| Restauracja | Tak | |
| Bar / pub | Tak | |
| Szkoła podstawowa | Tak | |
| Liceum / Technikum | Tak | |
| Uczelnia | Nie | |
| Żłobek | Tak | |
| Przedszkole | Tak | |
| Fitnes | Tak | |
| Apteka | Tak | |
| Fryzjer | Tak | |
| Supermarket | Tak | |
| Sklep spożywczy | Tak | |
| Weterynarz | Tak | |
Kontakt:
Magdalena Adamczyk
Tel.: 786 288 784
Nr ref.: O-17846
Magdalena Adamczyk
Tel.: 786 288 784
Nr ref.: O-17846
