2 sypialnie z własnymi garderobami-wolnostojący
Dom na sprzedaż, cena 865000 PLN, 6952 PLN/m2, powierzchnia 124 m2Konstantynów Łódzki, łódzkie, Polska











Jeśli szukasz domu wybudowanego w stanie deweloperskim w otoczeniu zieleni, do którego dojazd do centrum Konstantynowa Łódzkiego bądź Łodzi jest szybki i sprawny - to ta ALTERNATYWA jest dla Ciebie!
LOKALIZACJA:
Konstantynów Łódzki okolice ul. Józefów
Dom położony w otoczeniu zieleni z dużą przestrzenią spacerową wśród łąk i lasku
- tylko 7 km od Łodzi
- sklepy osiedlowe, dyskonty: spacerem 5 minut i 5-6 minut jazdy samochodem
TA OFERTA TYLKO U NAS
Bożena Wachowicz
511*488*139, 662*090*777
Przedstawiam do sprzedaż dom parterowy, wolnostojący w stanie deweloperskim:
+ o powierzchni 124,42 m2
+ 2 sypialnie z własnymi garderobami, duży salon z aneksem kuchennym i spiżarnią,
+ usytuowany na prostokątnej działce o powierzchni 893 m2
>> w cenie 865 000 zł.
W galerii zdjęć przedstawiamy wizualizacje pomieszczeń oraz stan faktyczny, a także rzut pomieszczeń.
MEDIA:
- pompa ciepła (ogrzewanie podłogowe), prąd, woda-studnia, szambo
INFORMACJE TECHNICZNE:
-> parametry budynku spełniają wszystkie wymagania wypisu i wyrysu z planu zagospodarowania przestrzennego
-> powierzchnia użytkowa: 124,42 m2
-> powierzchnia zabudowy: 170,13 m2
-> kubatura budynku: 765 m3
-> ogrzewanie podłogowe
-> wysokość budynku 5,98 m licząc od projektowanego poziomu terenu
-> materiał budowlany: ceramiczny Protherm;
-> ściany zewnętrzne od wewnątrz z pustaka ceramicznego, ocieplenie warstwą styropianu, otynkowane
-> ściany wewnętrzne: ściany działowe z bloczków ceramicznych
-> dach: dachówka ceramiczna, wielospadowy o kącie nachylenia 30 stopni o konstrukcji płatwiowo-kleszczowej
-> okna PCV 3- szybowe
-> tynki wewnętrzne - cementowo - wapienny maszynowy bez gładzi i malowania
-> od strony ogrodu znajduje się taras
-> teren ogrodzony
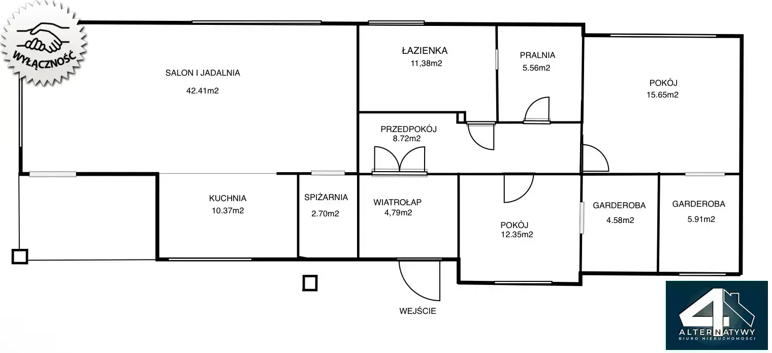
POMIESZCZENIA:
- salon z jadalnią 42,41m2
- kuchnia 10,37m2 + spiżarnia 2,70m2
- pokój/sypialnia (nr 1) 15,65m2 + garderoba 5,91m2
- pokój/sypialnia (nr 2) 12,35m2 + garderoba 4,58m2
- łazienka 11,38m2
- pralnia 5,56m2
- przedpokój 8,72m2
- wiatrołap 4,79m2
Możliwość wydzielenia pokoju/sypialni (nr 3).
TERENY REKREACYJNE:
> tereny zielone - duża przestrzeń spacerowa
> rzeka Ner (700 m), las Porszewice (2 km), Ścieżka Przyrodnicza (2 km), park rowerowy (2 km), staw wędkarski (2,3 km), staw-kąpielisko (2,5 km), park linowy (2,5 km), Centrum Sportu i Rekreacji Ośrodek Nad Stawem, pływalnia miejska (3 km).
Zapraszam do kontaktu:
Bożena Wachowicz
511*488*139, 662*090*777
e-mail: bozena.wachowicz@4alternatywy.com
Zapewniamy kompleksową obsługę finansową i prawną przy zakupie nieruchomości.
POMAGAMY W UZYSKANIU NAJLEPIEJ DOPASOWANEGO DO POTRZEB KREDYTU.
Ogłoszenie to nie stanowi oferty w rozumieniu Kodeksu Cywilnego, a dane w nim zawarte mają jedynie charakter informacyjny i mogą ulec zmianie.
LOKALIZACJA:
Konstantynów Łódzki okolice ul. Józefów
Dom położony w otoczeniu zieleni z dużą przestrzenią spacerową wśród łąk i lasku
- tylko 7 km od Łodzi
- sklepy osiedlowe, dyskonty: spacerem 5 minut i 5-6 minut jazdy samochodem
TA OFERTA TYLKO U NAS
Bożena Wachowicz
511*488*139, 662*090*777
Przedstawiam do sprzedaż dom parterowy, wolnostojący w stanie deweloperskim:
+ o powierzchni 124,42 m2
+ 2 sypialnie z własnymi garderobami, duży salon z aneksem kuchennym i spiżarnią,
+ usytuowany na prostokątnej działce o powierzchni 893 m2
>> w cenie 865 000 zł.
W galerii zdjęć przedstawiamy wizualizacje pomieszczeń oraz stan faktyczny, a także rzut pomieszczeń.
MEDIA:
- pompa ciepła (ogrzewanie podłogowe), prąd, woda-studnia, szambo
INFORMACJE TECHNICZNE:
-> parametry budynku spełniają wszystkie wymagania wypisu i wyrysu z planu zagospodarowania przestrzennego
-> powierzchnia użytkowa: 124,42 m2
-> powierzchnia zabudowy: 170,13 m2
-> kubatura budynku: 765 m3
-> ogrzewanie podłogowe
-> wysokość budynku 5,98 m licząc od projektowanego poziomu terenu
-> materiał budowlany: ceramiczny Protherm;
-> ściany zewnętrzne od wewnątrz z pustaka ceramicznego, ocieplenie warstwą styropianu, otynkowane
-> ściany wewnętrzne: ściany działowe z bloczków ceramicznych
-> dach: dachówka ceramiczna, wielospadowy o kącie nachylenia 30 stopni o konstrukcji płatwiowo-kleszczowej
-> okna PCV 3- szybowe
-> tynki wewnętrzne - cementowo - wapienny maszynowy bez gładzi i malowania
-> od strony ogrodu znajduje się taras
-> teren ogrodzony
POMIESZCZENIA:
- salon z jadalnią 42,41m2
- kuchnia 10,37m2 + spiżarnia 2,70m2
- pokój/sypialnia (nr 1) 15,65m2 + garderoba 5,91m2
- pokój/sypialnia (nr 2) 12,35m2 + garderoba 4,58m2
- łazienka 11,38m2
- pralnia 5,56m2
- przedpokój 8,72m2
- wiatrołap 4,79m2
Możliwość wydzielenia pokoju/sypialni (nr 3).
TERENY REKREACYJNE:
> tereny zielone - duża przestrzeń spacerowa
> rzeka Ner (700 m), las Porszewice (2 km), Ścieżka Przyrodnicza (2 km), park rowerowy (2 km), staw wędkarski (2,3 km), staw-kąpielisko (2,5 km), park linowy (2,5 km), Centrum Sportu i Rekreacji Ośrodek Nad Stawem, pływalnia miejska (3 km).
Zapraszam do kontaktu:
Bożena Wachowicz
511*488*139, 662*090*777
e-mail: bozena.wachowicz@4alternatywy.com
Zapewniamy kompleksową obsługę finansową i prawną przy zakupie nieruchomości.
POMAGAMY W UZYSKANIU NAJLEPIEJ DOPASOWANEGO DO POTRZEB KREDYTU.
Ogłoszenie to nie stanowi oferty w rozumieniu Kodeksu Cywilnego, a dane w nim zawarte mają jedynie charakter informacyjny i mogą ulec zmianie.
| Informacje podstawowe | ||
|---|---|---|
| Rodzaj nieruchomości | Dom | |
| Rodzaj transakcji | Sprzedaż | |
| Rynek | Pierwotny | |
| Województwo | łódzkie | |
| Miejscowość | Konstantynów Łódzki | |
| Prąd (przyłącze) | Tak | |
| Woda (przyłącze) | Tak | |
| Kanalizacja | Tak | |
| Warunki zabudowy | Tak | |
| Parking | Tak | |
| Rodzaj budynku | Dom jednorodzinny | |
| Rok budowy | 2023 | |
| Informacje dodatkowe | ||
|---|---|---|
| Powierzchnia działki | 893 | |
| Położenie działki | Teren płaski | |
| Kształt działki | Prostokąt | |
| Liczba pięter | Tylko parter | |
| Liczba pokoi | 3 | |
| Liczba sypialni | 2 | |
| Liczba łazieniek | 1 | |
| Stan obiektu | Deweloperski | |
| Rodzaj kuchni | Oddzielna | |
| Materiał | Pustak | |
| Technologia | Tradycyjna | |
| Zadaszenie (materiał) | Blachodachówka | |
| Ogrzewanie | Pompa ciepła | |
| Dostępność | Natychmiast | |
| Balkon | Nie | |
| Loggia | Nie | |
| Taras | Tak | |
| Ogród | Tak | |
| Piwnica | Nie | |
| Poddasze | Nie | |
| Winda | Nie | |
| Otoczenie | ||
|---|---|---|
| Otoczenie | Wolnostojące domki jednorodzinne | |
| Głośność | Cicho | |
| Las | Tak | |
| Łąka | Tak | |
| Góry | Nie | |
| Jezioro | Nie | |
| Rzeka | Tak | |
| Morze | Nie | |
| Park | Nie | |
| Bank | Tak | |
| Restauracja | Tak | |
| Bar / pub | Tak | |
| Szkoła podstawowa | Tak | |
| Liceum / Technikum | Tak | |
| Uczelnia | Tak | |
| Żłobek | Tak | |
| Przedszkole | Tak | |
| Basen | Tak | |
| Fitnes | Tak | |
| Pralnia | Tak | |
| Apteka | Tak | |
| Fryzjer | Tak | |
| Supermarket | Tak | |
| Sklep spożywczy | Tak | |
| Weterynarz | Tak | |
Kontakt:
Bożena Wachowicz
Tel.: 511 488 139
Nr ref.: O-18024
Bożena Wachowicz
Tel.: 511 488 139
Nr ref.: O-18024
